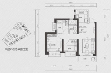
3室2厅2卫1厨
售完15栋2单元C1户型标准层 | 建面:119㎡ | 朝向:
- 所属楼栋
15栋
- 所属楼盘
价格待定算月供
实际价格以售楼处为准,户型图为开发商提供,具体以实际交房标准为准
微信打开
查看完整户型评测9.4
户型评分
- 基础测评10
- 采光通风8.6
户型信息
- 96.42㎡
套内面积
119㎡建筑面积
-22.58㎡公摊面积
- 81.03%
得房率
96.42㎡套内面积
÷119㎡建筑面积
- 主卧带卫
- 观景飘窗
对此楼盘感兴趣的人还浏览了
建发央玺
33778元/平方米
锦江-攀成钢用户评分9.62分
售完品牌地产改善优选装修交付地铁沿线
环球都汇广场
17000元/平方米
锦江-攀成钢用户评分0.0分
在售复合地产地铁沿线
香港置地.光环中心
16000元/平方米
锦江-攀成钢用户评分0.0分
待售地铁沿线
查看全部












