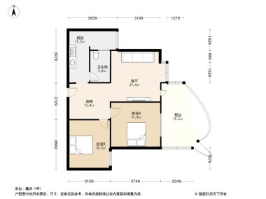
2室2厅1卫1厨
售完凯丽滨江2居室户型图 | 建面:87㎡ | 朝向:西北
- 所属楼盘
价格待定算月供
实际价格以售楼处为准,户型图为开发商提供,具体以实际交房标准为准
微信打开
查看完整户型评测8.8
户型评分
- 基础测评8.5
- 空间测评8.8
- 采光通风9.3
户型信息
- 1个阳台
- 1个明卫
- 明卫
- 客厅朝南
- 双卧朝南
- 主卧朝南
空间测评良好8.8空间测评指标


- 面宽

- 进深
*施工有误差,交付时无法与户型图一致,仅供参考,最终以开发商合同为准
| 面积(㎡) | 面宽(m) | 进深(m) | 评价 | |
|---|---|---|---|---|
| 客厅 | 31 | 6.9 | 5.7 | 极佳 |
| 卧室A | 16.1 | 4.3 | 3.9 | 良好 |
| 卧室B | 12.8 | 3.8 | 3.1 | 良好 |
| 厨房 | 6.8 | 2.7 | 2.2 | 良好 |
| 卫生间 | 4.3 | 2 | 1.9 | 良好 |
| 阳台 | 6.5 | 2.2 | 2.5 | 良好 |
*户型数据为人工测量或估算值,可能于实际情况存在误差,仅供参考,实际数据以开发商发布为准。
通风测评优秀9.3


- 开窗

- 风向
*施工有误差,交付时无法与户型图一致,仅供参考,最终以开发商合同为准
采光测评优秀9.3采光测评的指标
| 采光性 | 评价 | |
|---|---|---|
| 客厅 | 良好 | |
| 卧室A | 极佳 | |
| 卧室B | 极佳 | |
| 卫生间 | 优秀 | |
| 阳台 | 极佳 |
*户型数据为人工测量或估算值,可能于实际情况存在误差,仅供参考,实际数据以开发商发布为准。
房屋细节
客厅 31㎡ | 面宽6.9m | 进深5.7m
- 空间豪华豪华客厅空间开阔,每一处细节都透露出主人对生活的热爱与追求。
- 朝西采光充足的朝西客厅,让家居生活充满阳光,夕阳的美景更是让人心情愉悦。
优秀落地窗让客厅与大自然无缝对接,让您在欣赏美景的同时,也能感受到大自然的恩赐与庇护。- 有阳台客厅外连阳台,让视野更加开阔,也为家中增添了一处赏景的好地方。
卧室A 16.1㎡ | 面宽4.3m | 进深3.9m
空间可容纳
床
1.8m*2m
床头柜X2
0.4m宽
衣柜
0.6m深
- 空间适中卧室A虽小,却设计得十分精致,每一寸空间都被合理利用,为您营造出一个既舒适又温馨的休憩环境。
优秀朝南的卧室A光线充足,通风条件优越,为您打造一处自然舒适的私密天地,无论是休闲午后还是宁静夜晚,都能沐浴在阳光的温暖之中。
优秀卧室A设有落地窗,每日清晨阳光洒满房间,美景一览无余,为您开启一天的惬意时光。- 次卧有阳台阳台与卧室A的连通设计,让您的生活更加便捷。您可以在这里晾晒衣物,感受阳光的味道与温暖,享受生活的便利与舒适。
卧室B 12.8㎡ | 面宽3.8m | 进深3.1m
空间可容纳
床
1.8m*2m
床头柜X2
0.4m宽
衣柜
0.6m深
- 空间适中尽管卧室B面积有限,但设计师巧妙地利用每一寸空间,布局合理,使这个小小的角落成为您放松身心的温馨之地。
优秀朝南设计的卧室B,光线通透,通风舒畅,为您的私人领地增添一份自然的舒适与惬意,无论是午后放松还是夜晚入眠,都能享受到阳光的温暖陪伴。
优秀站在卧室B的落地窗前,您可以尽情欣赏窗外的美景,感受生活的宁静与美好。
厨房 6.8㎡ | 面宽2.7m | 进深2.2m
- 空间适中厨房空间布局合理,让您的烹饪过程更加流畅自如,提升生活品质。
卫生间 4.3㎡ | 面宽2m | 进深1.9m
- 空间适中卫生间虽小,但设计精巧,空间布局合理,让您的日常清洁变得更加简单方便。
- 明卫有了窗户的卫生间,不仅通风好,还能欣赏到窗外的美景,让卫浴时光更加惬意。
3室2厅2卫售完8.9“良好”
价格待定139.44㎡
3室1厅2卫售完8.9“良好”
价格待定139.90㎡
3室2厅2卫售完8.6“良好”
价格待定139.78㎡
3室2厅2卫售完9.1“优秀”
价格待定134.10㎡
3室2厅2卫售完9.1“优秀”
价格待定147.00㎡
3室2厅2卫售完9.1“优秀”
价格待定148.32㎡
3室2厅2卫售完9.3“优秀”
价格待定135.21㎡
3室2厅2卫售完9.2“优秀”
价格待定121.10㎡
3室1厅2卫售完8.5“良好”
价格待定149.00㎡
3室2厅2卫售完8.4“良好”
价格待定148.00㎡
3室2厅2卫售完8.9“良好”
价格待定130.53㎡
3室2厅2卫售完8.9“良好”
价格待定134.00㎡
3室2厅2卫售完8.7“良好”
价格待定116.31㎡
3室1厅2卫售完8.8“良好”
价格待定150.03㎡
3室2厅1卫售完8.7“良好”
价格待定82.00㎡
3室2厅1卫售完10“极佳”
0.00116.00㎡
3室2厅2卫售完9“优秀”
0.00147.00㎡
3室2厅2卫售完9“优秀”
0.00147.00㎡
3室2厅2卫售完9“优秀”
0.00145.00㎡
3室2厅2卫售完10“极佳”
0.00123.00㎡
3室2厅1卫售完9“优秀”
0.00140.00㎡
对此楼盘感兴趣的人还浏览了
查看全部






优秀































