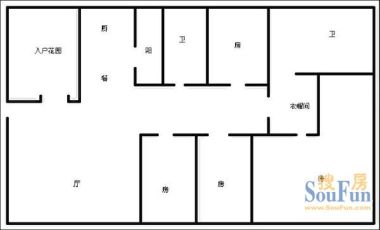
2室2厅1卫1厨
售完维多利亚公寓2居室户型图 | 建面:85.56㎡ | 朝向:朝南
- 所属楼盘
价格待定算月供
实际价格以售楼处为准,户型图为开发商提供,具体以实际交房标准为准
微信打开
查看完整户型评测9.1
户型评分
- 基础测评9.5
- 空间测评8.6
- 采光通风9
户型信息
- 2个阳台
- 1个飘窗
- 1个明卫
- 户型方正
- 明卫
- 双阳台
空间测评良好8.6空间测评指标

*施工有误差,交付时无法与户型图一致,仅供参考,最终以开发商合同为准
- 客厅:优秀
- 卧室A:良好
- 卧室B:良好
- 厨房:良好
- 卫生间:良好
- 阳台A:良好
- 阳台B:良好
通风测评优秀9


- 开窗

- 风向
*施工有误差,交付时无法与户型图一致,仅供参考,最终以开发商合同为准
采光测评优秀9采光测评的指标
| 采光性 | 评价 | |
|---|---|---|
| 卧室B | 极佳 | |
| 卫生间 | 优秀 | |
| 阳台A | 极佳 | |
| 阳台B | 极佳 |
*户型数据为人工测量或估算值,可能于实际情况存在误差,仅供参考,实际数据以开发商发布为准。
房屋细节
客厅
- 空间宽敞宽敞舒适的客厅,是家人团聚、朋友交流的绝佳场所,让人感受到家的温暖与亲密。
- 有阳台客厅与阳台相连通,使得整个空间更加开阔明亮,同时也为家人提供了一个互动交流的场所。
卧室A
空间可容纳
床
1.2m*2m
床头柜X1
0.4m宽
- 空间适中卧室A虽小,却设计得精致而舒适,每一寸空间都得到了充分的利用,为您带来一个宁静而温馨的休憩环境。
- 次卧有阳台卧室A的阳台设计巧妙,让您的生活空间得到完美利用。您可以在这里摆放运动器材,进行户外锻炼,享受健康的生活方式。
卧室B
空间可容纳
床
1.8m*2m
床头柜X2
0.4m宽
衣柜
0.6m深
- 空间适中卧室B设计得十分用心,每一寸空间都得到了充分的利用,既精致又实用,为您带来舒适的休憩体验。
- 有飘窗飘窗为卧室B增添一抹亮色,同时也为您打造一个温馨的阅读或休憩空间。
- 次卧有阳台卧室B的阳台设计巧妙,让您的生活空间得到完美利用。您可以在这里摆放运动器材,进行户外锻炼,享受健康的生活方式。
厨房
- 空间适中适度的厨房面积,既满足您的烹饪需求,又让厨房成为家中的一道亮丽风景。
- 厨房带阳台厨房有小阳台,方便储物。
卫生间
- 空间适中虽面积有限,但卫生间设计独具匠心,空间利用高效,让日常清洁变得简单方便。
- 明卫有了窗户的卫生间,通风换气更为便捷,有效避免潮湿和异味,保持室内干爽清新。
3室2厅2卫售完9“优秀”
价格待定131.32㎡
3室2厅2卫售完9“优秀”
价格待定136.53㎡
3室2厅2卫售完9.1“优秀”
价格待定121.85㎡
3室2厅2卫售完8.9“良好”
价格待定131.68㎡
3室2厅1卫售完8.9“良好”
价格待定130.97㎡
3室2厅2卫售完9.4“优秀”
价格待定120.51㎡
3室1厅1卫售完9.3“优秀”
价格待定128.66㎡
3室2厅2卫售完9.3“优秀”
价格待定120.00㎡
3室2厅2卫售完9.3“优秀”
价格待定126.13㎡
3室2厅2卫售完9.2“优秀”
价格待定131.32㎡
3室2厅2卫售完9.1“优秀”
价格待定146.50㎡
3室1厅2卫售完9.1“优秀”
价格待定126.44㎡
3室2厅售完0“普通”
0.00131.00㎡
3室2厅2卫售完10“极佳”
0.00126.00㎡
3室2厅2卫售完9“优秀”
0.00131.00㎡
对此楼盘感兴趣的人还浏览了
查看全部





































