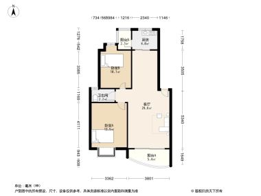
3室2厅2卫1厨
售完新沙河阳光水岸3居室户型图 | 建面:107.02㎡ | 朝向:朝南
- 所属楼盘
价格待定算月供
实际价格以售楼处为准,户型图为开发商提供,具体以实际交房标准为准
微信打开
查看完整户型评测9.2
户型评分
- 基础测评9.5
- 空间测评8.7
- 采光通风9.2
户型信息
- 2个飘窗
- 1个明卫
- 明厨
- 次卧带卫生间
- 户型方正
- 明厨
- 明卫
- 客厅朝南
- 全明格局
- 双卧朝南
空间测评良好8.7空间测评指标


- 面宽

- 进深
*施工有误差,交付时无法与户型图一致,仅供参考,最终以开发商合同为准
| 面积(㎡) | 面宽(m) | 进深(m) | 评价 | |
|---|---|---|---|---|
| 客厅 | 39.2 | 6 | 7.6 | 极佳 |
| 卧室A | 13.2 | 3.3 | 3.9 | 良好 |
| 卧室B | 10.9 | 3.3 | 3.3 | 良好 |
| 卧室C | 11 | 3 | 3.9 | 良好 |
| 厨房 | 13.1 | 2.9 | 2.6 | 良好 |
| 卫生间A | 3.2 | 2.1 | 1.6 | 良好 |
| 卫生间B | 2.7 | 1.9 | 1.5 | 良好 |
*户型数据为人工测量或估算值,可能于实际情况存在误差,仅供参考,实际数据以开发商发布为准。
通风测评优秀9.2


- 开窗

- 风向
*施工有误差,交付时无法与户型图一致,仅供参考,最终以开发商合同为准
采光测评优秀9.2采光测评的指标
| 采光性 | 评价 | |
|---|---|---|
| 客厅 | 普通 | |
| 卧室A | 极佳 | |
| 卧室B | 极佳 | |
| 卧室C | 极佳 | |
| 厨房 | 普通 | |
| 卫生间A | 极佳 |
*户型数据为人工测量或估算值,可能于实际情况存在误差,仅供参考,实际数据以开发商发布为准。
房屋细节
客厅 39.2㎡ | 面宽6m | 进深7.6m
- 空间豪华宽敞而豪华的客厅,让人在享受舒适生活的同时,也能感受到尊贵与荣耀。
- 朝西采光明媚的朝西客厅,是观赏夕阳的绝佳之地,每当黄昏时分,都能欣赏到夕阳的绚烂。
优秀宽敞明亮的客厅因落地窗而更显通透,让您在享受室内温馨的同时,也能领略到户外的自然风光。
卧室A 13.2㎡ | 面宽3.3m | 进深3.9m
空间可容纳
床
1.8m*2m
床头柜X2
0.4m宽
衣柜
0.6m深
- 空间适中卧室A虽小,却设计得精致而舒适,每一寸空间都得到了充分的利用,为您带来一个宁静而温馨的休憩环境。
- 有飘窗拥有飘窗的卧室A,让窗外的风景成为室内的一部分,为您带来一份宁静与惬意。
卧室B 10.9㎡ | 面宽3.3m | 进深3.3m
空间可容纳
床
1.8m*2m
床头柜X2
0.4m宽
衣柜
0.6m深
- 空间适中精致小巧的卧室B,虽然面积不足10平米,但设计巧妙,布局合理,每一寸空间都得到了充分利用,为您打造了一个温馨而舒适的休憩角落
优秀卧室B朝南,光线充裕,空气流通,为您的私密领地增添一抹自然的温馨,无论是午后休憩还是夜晚入梦,都能感受到阳光的温馨陪伴。- 有飘窗卧室B设有飘窗,窗外美景一览无余,让您的视野更为开阔,享受自然与宁静。
卧室C 11㎡ | 面宽3m | 进深3.9m
空间可容纳
床
1.8m*2m
床头柜X2
0.4m宽
衣柜
0.6m深
- 空间适中尽管卧室C面积有限,但设计师却巧妙地将每一寸空间都利用起来,打造出一个精致而舒适的休憩环境。
优秀卧室C朝南,光线明亮而柔和,通风顺畅,为您的私密空间带来一份自然的宁静与安逸,无论是小憩片刻还是长夜安睡,都能感受到阳光的温暖照耀。- 有窗卧室C窗户设计独特,让室内的光线与室外的景色完美融合,为您营造一个既温馨又舒适的生活氛围。
厨房 13.1㎡ | 面宽2.9m | 进深2.6m
- 空间适中厨房面积适中,让您在料理美食的同时,也能享受到宽敞舒适的烹饪空间。
- 明厨宽敞的厨房窗户带来明亮光线,让烹饪环境更加舒适,享受家的温馨与宁静。
卫生间A 3.2㎡ | 面宽2.1m | 进深1.6m
- 空间适中卫生间A空间恰到好处,既不拥挤也不空旷,为您打造舒适的洗漱体验。
- 明卫卫生间A的窗户设计,既保证了空间的私密性,又让自然光与空气得以自由流通。
卫生间B 2.7㎡ | 面宽1.9m | 进深1.5m
- 空间适中卫生间B虽小,但空间布局合理,实用性强,为您打造便捷的洗漱空间。
对此楼盘感兴趣的人还浏览了
建发央玺
33778元/平方米
锦江-攀成钢用户评分9.62分
售完品牌地产改善优选装修交付地铁沿线
环球都汇广场
17000元/平方米
锦江-攀成钢用户评分0.0分
在售复合地产地铁沿线
香港置地.光环中心
16000元/平方米
锦江-攀成钢用户评分0.0分
待售地铁沿线
查看全部





优秀




















