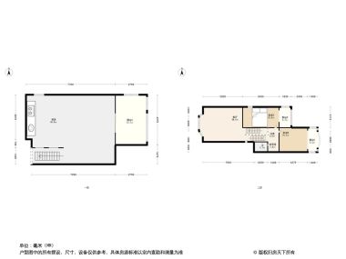
2室1厅1卫1厨
售完兴元嘉园2居室户型图 | 建面:84.2㎡ | 朝向:西南
- 所属楼盘
价格待定算月供
实际价格以售楼处为准,户型图为开发商提供,具体以实际交房标准为准
微信打开
查看完整户型评测9
户型评分
- 基础测评9.3
- 空间测评9
- 采光通风8.8
户型信息
- 1个阳台
- 1个明卫
- 明厨
- 明厨
- 明卫
空间测评优秀9空间测评指标

*施工有误差,交付时无法与户型图一致,仅供参考,最终以开发商合同为准
- 客厅:极佳
- 卧室A:良好
- 卧室B:良好
- 厨房:良好
- 卫生间:良好
- 阳台:极佳
通风测评良好8.8


- 开窗

- 风向
*施工有误差,交付时无法与户型图一致,仅供参考,最终以开发商合同为准
采光测评良好8.8采光测评的指标
| 采光性 | 评价 | |
|---|---|---|
| 卧室A | 极佳 | |
| 卧室B | 普通 | |
| 厨房 | 极佳 | |
| 卫生间 | 良好 |
*户型数据为人工测量或估算值,可能于实际情况存在误差,仅供参考,实际数据以开发商发布为准。
房屋细节
客厅
- 空间豪华豪华客厅空间开阔,每一处细节都透露出主人对生活的热爱与追求。
卧室A
空间可容纳
床
1.8m*2m
床头柜X2
0.4m宽
衣柜
0.6m深
- 空间适中卧室A虽小,却设计得精致而实用,每一寸空间都得到了合理的利用,为您打造出一个温馨舒适的休憩空间。
- 朝东卧室A朝向东方,每日清晨的阳光都能准时洒落,为您带来新一天的活力与希望,让您在早晨就能感受到生活的美好与快乐。
优秀站在卧室A的落地窗前,您可以尽情领略窗外的美景,感受生活的美好与宁静。
卧室B
空间可容纳
床
1.8m*2m
床头柜X2
0.4m宽
衣柜
0.6m深
- 空间适中精致小巧的卧室B,设计精巧,每一寸空间都得到了充分利用,让您在繁忙的生活中拥有一个温馨的休憩角落。
- 有窗卧室B拥有明亮的窗户,让您在享受舒适睡眠的同时,也能感受到自然光的温暖与照耀,让您的生活更加美好。
厨房
- 空间适中精心设计的厨房空间,既实用又舒适,让您的烹饪之旅更加轻松愉快。
- 明厨厨房的窗户明亮通透,让烹饪时光充满阳光与温暖,享受家的温馨与舒适。
卫生间
- 空间适中卫生间虽小,但设计精巧,空间布局合理,让您的日常清洁变得更加简单方便。
- 明卫卫生间的窗户让室内光线充足,减少了潮湿和异味,为居住者带来更加健康舒适的卫浴环境。
对此楼盘感兴趣的人还浏览了
查看全部





优秀







































