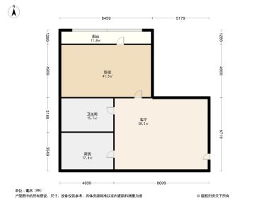
1室1卫1厨
售完新城市广场1居室户型图 | 建面:35.41㎡ | 朝向:东南
- 所属楼盘
价格待定算月供
实际价格以售楼处为准,户型图为开发商提供,具体以实际交房标准为准
微信打开
查看完整户型评测8.5
户型评分
- 基础测评8.5
- 空间测评8.5
- 采光通风8.5
户型信息
- 1个阳台
- 明厨
- 次卧带卫生间
- 明厨
空间测评良好8.5空间测评指标

*施工有误差,交付时无法与户型图一致,仅供参考,最终以开发商合同为准
- 卧室:良好
- 厨房:良好
- 卫生间:良好
通风测评良好8.5


- 开窗

- 风向
*施工有误差,交付时无法与户型图一致,仅供参考,最终以开发商合同为准
采光测评良好8.5采光测评的指标
| 采光性 | 评价 | |
|---|---|---|
| 厨房 | 极佳 |
*户型数据为人工测量或估算值,可能于实际情况存在误差,仅供参考,实际数据以开发商发布为准。
房屋细节
卧室
空间可容纳
床
1.8m*2m
床头柜X2
0.4m宽
衣柜
0.6m深
- 空间适中精致小巧的卧室,设计得十分精致,每一寸空间都得到了合理的利用,让您在繁忙的生活中拥有一个宁静的休憩之所。
厨房
- 空间适中厨房空间宽敞明亮,既满足您的烹饪需求,又能让厨房成为家中的一道亮丽风景。
- 明厨厨房的窗户如同明亮的眼睛,让室内充满自然光,烹饪过程更加轻松,感受家的舒适与惬意。
卫生间
- 空间适中卫生间空间适中,既满足您的日常需求,又保持空间的舒适度,让您的洗浴体验更加完美。
2室1厅1卫售完9.2“优秀”
价格待定74.09㎡
2室1厅1卫售完9“优秀”
价格待定67.40㎡
2室1厅1卫售完8.9“良好”
价格待定65.96㎡
2室1厅1卫售完9“优秀”
价格待定65.91㎡
2室2厅1卫售完9.1“优秀”
价格待定68.08㎡
2室1厅1卫售完9.2“优秀”
价格待定71.03㎡
2室1厅2卫售完9.1“优秀”
价格待定65.91㎡
2室1厅1卫售完9“优秀”
价格待定71.03㎡
2室1厅1卫售完9.2“优秀”
价格待定74.09㎡
2室1厅1卫售完9.3“优秀”
价格待定65.96㎡
2室1厅1卫售完10“极佳”
0.0085.00㎡
2室1厅1卫售完10“极佳”
0.0075.00㎡
2室1厅1卫售完10“极佳”
0.0079.00㎡
对此楼盘感兴趣的人还浏览了
查看全部


























































