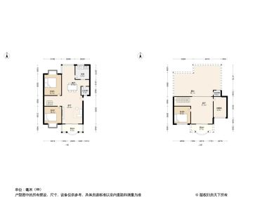
4室2厅2卫1厨
售完明星花苑4居室户型图 | 建面:142.94㎡ | 朝向:东南
- 所属楼盘
价格待定算月供
实际价格以售楼处为准,户型图为开发商提供,具体以实际交房标准为准
微信打开
查看完整户型评测9.1
户型评分
- 基础测评9.3
- 空间测评8.8
- 采光通风9.1
户型信息
- 2个阳台
- 1个飘窗
- 独立衣帽间
- 户型方正
- 独立衣帽间
- 双阳台
- 主卧朝南
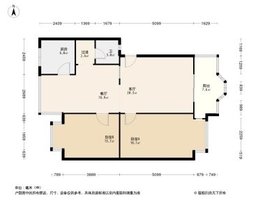
空间测评良好8.8空间测评指标


- 面宽

- 进深
*施工有误差,交付时无法与户型图一致,仅供参考,最终以开发商合同为准
| 面积(㎡) | 面宽(m) | 进深(m) | 评价 | |
|---|---|---|---|---|
| 卧室D | 11.8 | 2.9 | 4 | 良好 |
| 客厅 | 48.5 | 10.9 | 9.4 | 极佳 |
| 卧室A | 14.2 | 4.4 | 3.2 | 良好 |
| 卧室B | 17.9 | 4.4 | 4.1 | 良好 |
| 卧室C | 7.5 | 2.3 | 3.3 | 良好 |
| 厨房 | 5.6 | 2.2 | 2.5 | 良好 |
| 卫生间 | 3.5 | 2.2 | 1.6 | 良好 |
| 阳台A | 9.4 | 2.2 | 4.3 | 极佳 |
| 阳台B | 3.5 | 2.2 | 1.6 | 良好 |
*户型数据为人工测量或估算值,可能于实际情况存在误差,仅供参考,实际数据以开发商发布为准。
通风测评优秀9.1


- 开窗

- 风向
*施工有误差,交付时无法与户型图一致,仅供参考,最终以开发商合同为准
采光测评优秀9.1采光测评的指标
| 采光性 | 评价 | |
|---|---|---|
| 卧室D | 极佳 | |
| 卧室A | 极佳 | |
| 卧室B | 极佳 | |
| 卧室C | 极佳 | |
| 阳台B | 极佳 |
*户型数据为人工测量或估算值,可能于实际情况存在误差,仅供参考,实际数据以开发商发布为准。
房屋细节
卧室D 11.8㎡ | 面宽2.9m | 进深4m
空间可容纳
床
1.8m*2m
床头柜X2
0.4m宽
衣柜
0.6m深
- 空间适中卧室D设计得十分巧妙,虽然面积不大,但每一寸都被精心打造,为您打造出一个既温馨又舒适的休憩之所。
- 有窗卧室D的窗户设计独具匠心,既保证了室内的采光与通风,又让窗外的美景尽收眼底。
客厅 48.5㎡ | 面宽10.9m | 进深9.4m
- 空间豪华客厅空间宽敞豪华,无论是休闲娱乐还是商务洽谈,都能满足主人的多样化需求。
卧室A 14.2㎡ | 面宽4.4m | 进深3.2m
空间可容纳
床
1.8m*2m
床头柜X2
0.4m宽
衣柜
0.6m深
- 空间适中精致小巧的卧室A,虽然面积不大,但设计却十分用心,每一处都透露着舒适与温馨,让您拥有一个温馨的休憩之所。
- 朝东卧室A朝向东方,每日清晨的阳光都能准时洒落,为您带来新一天的活力与希望,让您在早晨就能感受到生活的美好与快乐。
- 有窗卧室A窗户明亮,让阳光洒满整个空间,为您带来满满的能量与活力,让您每天都能充满活力地迎接新的一天。
卧室B 17.9㎡ | 面宽4.4m | 进深4.1m
空间可容纳
床
1.8m*2m
床头柜X2
0.4m宽
衣柜
0.6m深
- 空间适中尽管卧室B面积有限,但设计师却巧妙地将每一寸空间都利用起来,打造出一个既实用又舒适的休憩之所。
优秀朝南的卧室B采光优良,通风效果出色,为您的私人领地带来一份自然的惬意与舒适,无论是午后小憩还是夜晚安睡,都能沐浴在温暖的阳光中。- 有窗卧室B窗户设计合理,让自然光均匀洒满每个角落,为您打造一个明亮且舒适的休息环境。
- 有飘窗飘窗成为卧室B的亮点之一,既提升室内采光,又为您带来一份愉悦的视觉享受。
卧室C 7.5㎡ | 面宽2.3m | 进深3.3m
空间可容纳
床
1.2m*2m
床头柜X1
0.4m宽
- 空间适中卧室C虽小,却设计得十分精致,每一寸空间都被合理利用,为您营造出一个既舒适又温馨的休憩环境。
- 朝西朝西的卧室C视野宽广,傍晚时分,落日的美景让您流连忘返,感受大自然的宁静与温馨。
- 有窗卧室C的窗户,如同眼睛般明亮,让您在舒适的床上,就能欣赏到窗外的美丽景色,感受生活的无限美好。
厨房 5.6㎡ | 面宽2.2m | 进深2.5m
- 空间适中厨房空间宽敞舒适,让您在烹饪时能够尽情发挥,享受美食带来的快乐。
卫生间 3.5㎡ | 面宽2.2m | 进深1.6m
- 空间适中卫生间空间适中,既满足您的日常需求,又保持空间的舒适度,让您的洗浴体验更加完美。
对此楼盘感兴趣的人还浏览了
国投锦绣东屿
14000元/平方米
龙泉驿-阳光城用户评分8.67分
在售国企开发洋房
龙润丰锦
12000元/平方米
龙泉驿-阳光城用户评分8.84分
在售花园洋房
幸福东方白桦林
6900元/平方米
龙泉驿-阳光城用户评分8.86分
在售景观居所改善优选装修交付
查看全部






优秀



































