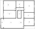
3室2厅2卫1厨
售完香榭里 3室 户型 | 建面:140㎡ | 朝向:
- 所属楼盘
价格待定算月供
实际价格以售楼处为准,户型图为开发商提供,具体以实际交房标准为准
微信打开
查看完整户型评测9
户型评分
- 基础测评9
3室2厅2卫售完9.1“优秀”
价格待定143.79㎡
3室2厅2卫售完9“优秀”
价格待定126.67㎡
3室2厅2卫售完8.8“良好”
价格待定141.90㎡
3室2厅2卫售完9“优秀”
价格待定142.79㎡
3室1厅2卫售完9“优秀”
价格待定130.56㎡
3室2厅2卫售完9“优秀”
价格待定142.79㎡
3室2厅2卫售完8.9“良好”
价格待定142.88㎡
3室2厅2卫售完8.9“良好”
价格待定132.60㎡
3室2厅2卫售完9“优秀”
0.00143.00㎡
3室1厅1卫售完8“良好”
0.0086.00㎡
3室2厅2卫售完9“优秀”
0.00131.00㎡
3室2厅2卫售完9“优秀”
0.00130.00㎡
3室2厅2卫售完9“优秀”
0.00143.00㎡
3室2厅2卫售完9“优秀”
0.00131.00㎡
3室2厅2卫售完9“优秀”
0.00143.00㎡
3室2厅2卫售完9“优秀”
0.00143.00㎡
对此楼盘感兴趣的人还浏览了
查看全部


















