【三庙街小区】| 北京市西城区三庙街3号楼4层4门4层401房屋
- 458万
当前价
- 636万
评估价
拍卖信息
- 保证金:
¥900,000
- 起拍价:
¥4,581,544
- 加价幅度:
¥10,000
- 单价:
71308元/㎡
- 折价率:
7.2折
- 面积:
64.25㎡
- 楼型:
板楼
- 拍卖方式:
升价拍
- 优先购买权人:
无
- 延时周期:
暂无
- 地铁:
- 小区:
标的物详情
提示:
凡具备完全民事行为能力的自然人和法人均可参加竞买。如参与竞买人未开设司法拍卖网络平台账户、支付宝账户,可委托代理人(具备完全民事行为能力的自然人)参与竞拍,但须至少在开拍日前2个工作日向本院提交合法有效的委托手续,资格经法院确认后方能进行委托拍卖。成交后,法院仅协助最终成交的买受人(拍卖平台中《网络竞价成功确认书》公示的成交用户)办理过户等财产交割事宜。意向参与竞买人未向法院提交委托手续而自行委托他人代买的,自行承担成交后产权转移不能的后果。
1.我院法拍房通过阿里巴巴司法拍卖网络平台(淘宝网)进行公开拍卖,未与任何房屋中介机构合作,所有符合竞买条件的主体均可自行在淘宝网购买,无需通过中介机构购买或代为购买;2.我院未开展法拍房贷款业务,拍卖页面中“赊钱报名”“一键贷款”“放心拍服务”均为网拍服务平台提供,与我院无关,因使用上述服务导致尾款未按时缴纳的,自行承担逾期缴纳尾款后果,保证金不予退还;3.法拍房除拍卖成交款外,人民法院不收取任何佣金、手续费、腾房费等费用。
买受人悔拍的,需买受人本人持居民身份证原件来天津市滨海新区人民法院执行局(天津市滨海新区北塘鑫盛商务园1号楼)签署确认悔拍笔录。
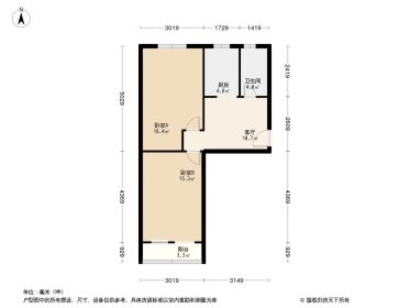
北京市西城区三庙街3号楼4层4门4层401房屋,不动产权证号京房权证宣私字第62034号,建筑面积64.25平方米,房屋规划用途为住宅,权利性质为房改房(成本价),证载总层数6层,所在层4层,混合结构,登记日期2007年6月25日;不动产登记资料未载明土地权利性质、用途、使用(承包)期限。本院已查封该房屋。
已知瑕疵说明:经现场调查,房屋现由案外人占有使用,占有使用人主张房屋存有租赁,租期自2023年11月至2027年10月,租金6800元/月,经本院通知后未提交书面租赁合同、租金支付凭证等材料,其自述出租人非房屋产权人,截至本变卖公告发布时租赁关系未经法律程序认定;有欠费,截至2025年12月,物业费欠费约9492元,供热费欠费约1542元,未能调查到水费、电费、燃气费等是否欠费;具体瑕疵以实物现状为准。



拍卖工具
房屋价值8.3分
- 市场价值8.5
- 成交价值8.0
- 居住价值8.5
区位价值8.7分
- 小区品质8.5
同区域的法拍房
即将开始【航空胡同40号院】| 北京市西城区航空胡同40号院3号楼6层3门601
157.6㎡ 西城区-新街口
低于评估价30%一拍起拍价¥910万评估价¥1300万2026-05-06 10:00:00开始
即将开始【耀武胡同】| 位于北京市西城区耀武胡同11号5幢-1层地下室等3套房产
199.1㎡ 西城区-宣武门
低于评估价28%变卖起拍价¥1308万评估价¥1817万2026-05-07 10:00:00开始
正在进行【三庙街小区】| 北京市西城区三庙街3号楼4层4门4层401房屋
64.25㎡ 西城区-长椿街
低于评估价28%变卖当前价¥458万评估价¥636万2026-04-27 10:00:00结束
小区攻略
小区信息全方位解读
特点全面解析

小区概况
- 建筑年代
2000
- 物业类型
住宅
- 房屋总数
355户
- 楼栋总数
9栋
- 绿化率
30%
- 容积率
1.50
- 产权描述
三庙街小区普通住宅产权为70年
- 建筑类型
板楼
- 物业费
1元/㎡·月
- 区域
西城 长椿街
- 物业公司
街道办事处(委员会)代管物业
- 停车位
车位充足
- 开发商
北京市房屋管理局
周边配套
交通综合评分
查看全部超过北京39.7%的小区
- 地铁公交10.0
- 驾车出行7.0
- 城际交通4.5
- 98687元/㎡
本月挂牌均价
- 1.28%
环比上月
小区成交历史(89)
热门问题
问参与司法拍卖需要做哪些准备工作?
答 竞拍前请务必遵照《竞买公告》的要求,进行实地看样、调查标的物信息(如过户要求、违章情况等)、了解竞买资质、委托代理及尾款支付方式等内容。如违反相关规定,您的保证金可能会被法院划扣并产生其他司法处罚等后果,请理性参拍!问参与司法拍卖报名须知?
答 凡具备完全民事行为能力的公民、法人和其他组织均可参加竞买。如参与竞买人未开设相关拍卖站点账户,可委托代理人(具备完全民事行为能力的自然人)进行,但必须在竞价程序开始前向法院提交委托材料(随带营业执照副本、授权委托书、委托代理人身份证等),经法院确认后可参与竞买。问法拍房限购吗?
答 2021年12月31日之前,全国仅部分地区(例如北京)是将法拍房纳入了限购范围,但是在2021年12月19日最高人民法院发布《最高人民法院关于人民法院司法拍卖房产竞买人资格若干问题的规定》中明确,自2022年1月1日起法拍房全面纳入限购,人民法院组织的司法拍卖房产活动,受房产所在地限购政策约束的竞买人申请参与竞拍的,人民法院不予准许。 具体限购政策需参考房产所在地情况。问竞买保证金是什么?
答 竞买保证金是对竞买人可能出现的违约责任的救济行为,属于担保的范围,表现为竞买人支付一定数额的现金,作为参与竞买并遵守拍卖规则和各种竞买规定的担保。 《拍卖法》对于保证金的收取并未做出明确的规定,只是要求竞买人参与竞买应当办理竞买手续。但一些部门的文件要求参加竞买必须交纳竞买保证金。在实际操作中,拍卖企业也都要求竞买人缴纳竞买保证金,否则,将不能取得竞买资格。问如何“交保证金报名”?
答 请在拍品竞买站点详情页点击“交保证金报名”按钮进入报名流程并交纳保证金,报名前请先登录相关站点账号,具体操作参见相关站点要求。问保证金能退吗?
答 保证金在以下情况下是可以退的: (1)竞买人未成功竞拍商品:例如在竞拍过程中始终未出价、在竞拍过程中放弃加价等情况; (2)竞买人已交纳保证金,法院将拍品撤回、暂缓、中止拍卖。 竞拍结束后,保证金会被返还,但具体到账时间需要以银行信息提示为准。 如您交纳的竞拍保证金符合退还条件,但是未予退还,您可以联系相关竞买站点客服进行处理。问竞拍成功后如何支付剩余成交款?
答 如果用户竞拍成功,保证金将转化为部分成交款直接划转至法院指定账户,剩余未支付的成交款,需用户在法院规定时间内通过银行汇款或网银支付的方式缴纳至法院指定账户(法院账户信息及缴款时限具体见拍卖公告和竞拍须知)。问网银支付限额怎么办?
答 司法拍卖拍品往往涉及金额较大,为避免您在支付的过程中,遇到因限额而导致无法支付的问题,建议您提前尝试交保,如支付额度不足,请及时去相关银行办理转账以及支付限额的业务,最高限额以各银行的规定为准,大额转账方式需将汇付识别码填写在用途/备注/摘要栏。问法拍房拍下来就能正常使用吗?
答 房屋能否正常使用主要看是否有人居住在里面,主要关注以下两方面: 1、是否腾空? 如果房主或其他人住在里面,需要联系法院,确认法院是否负责腾空 2、有无租赁? 如有租赁,不影响过户,但需注意∶租赁合同不会因为拍卖结束而失效。如果房子租出去了,竞拍成功后到租赁结束这段时间的租金,可以与法院确认是否会结算给买受人;如果要解除租赁,需要自行与承租人协调。问法拍房能申请贷款吗?
答 大部分法院拍卖的房产是要求购买者一次性支付全款,但如今已经有部分城市开始进行了法拍房贷款的试点工作,关于拍卖标的房屋能否贷款,请仔细阅览标的物竞买站点详情页面。问拍下不想要有啥后果?
答 如果拍下后不想要了,保证金会被罚没。 除此之外,如果重新拍卖后的价格低于此次毁拍的金额,法院有权要求买受人补齐差价,具体以法院要求为准。
同城拍卖
即将开始【月华北大街】| 房山区房山北大寺街14号楼3层2-301房屋
54.44㎡ 房山-良乡
低于评估价30%一拍起拍价¥49万评估价¥70万2026-04-26 10:00:00开始
即将开始【于家园二区】| 北京市怀柔区于家园二区11号楼6层5-602的房屋
73.28㎡ 怀柔区-怀柔城区
低于评估价44%变卖起拍价¥85万评估价¥151万2026-04-27 10:00:00开始
即将开始【怡安园】| 北京市怀柔区杨宋镇安平路29号院5号楼13层2单元1302的房屋
88.52㎡ 怀柔-庙城
低于评估价30%一拍起拍价¥124万评估价¥178万2026-04-27 10:00:00开始
即将开始【东潞苑小区】| 通州区东潞苑一区(通瑞嘉苑小区)19号楼9层1单元904
73.45㎡ 通州-潞苑南大街
低于评估价30%一拍起拍价¥148万评估价¥212万2026-04-27 10:00:00开始
即将开始【广渠门外大街】| 北京市朝阳区广渠门外大街8号18层西座-1806
105.11㎡ 朝阳-广渠门
低于评估价30%一拍起拍价¥203万评估价¥290万2026-04-27 10:00:00开始
即将开始【鸿博家园】| 北京市朝阳区鸿博家园四区3号楼26层2单元2601
83.97㎡ 朝阳-小红门
低于评估价20%一拍起拍价¥267万评估价¥333万2026-04-27 10:00:00开始
即将开始【鸿博家园】| 北京市朝阳区鸿博家园四区3号楼24层2单元2401
83.97㎡ 朝阳-小红门
低于评估价20%一拍起拍价¥265万评估价¥332万2026-04-27 10:00:00开始
即将开始【鸿博家园】| 北京市朝阳区鸿博家园四区3号楼23层2单元2301
83.97㎡ 朝阳-小红门
低于评估价20%一拍起拍价¥265万评估价¥332万2026-04-27 10:00:00开始
即将开始【鸿博家园】| 北京市朝阳区鸿博家园四区3号楼25层2单元2501
83.97㎡ 朝阳-小红门
低于评估价20%一拍起拍价¥267万评估价¥333万2026-04-27 10:00:00开始
即将开始【东大桥路】| 北京市朝阳区东大桥路8号院1号楼12层1508房屋
200.7㎡ 朝阳-建国门
一拍起拍价¥577万评估价¥577万2026-04-27 10:00:00开始
即将开始北京市怀柔区雁栖镇范各庄一区顶秀美泉家园3号楼2层1单元201的房屋
134.82㎡ 怀柔区
低于评估价44%二拍起拍价¥186万评估价¥332万2026-04-27 10:00:00开始
即将开始【三羊里】| 北京市大兴区三羊南街10号院32幢-1层361的车位
57.51㎡ 大兴区-亦庄
低于评估价44%变卖起拍价¥28万评估价 --2026-04-27 10:00:00开始
即将开始【霞光里】| 北京市朝阳区霞光里66号院2号楼21层2101 (203.47㎡)
203.47㎡ 朝阳区-三元桥
低于评估价30%一拍起拍价¥910万评估价 --2026-04-27 10:00:00开始
即将开始【西香河园乙5号院】| 北京市东城区香河园街1号院北区9号楼3层301号不动产以及1号院北区1幢-1层3-033、3-035车位
385.59㎡ 东城-东直门
一拍起拍价¥2422万评估价 --2026-04-27 10:00:00开始
即将开始【亿朋苑】| 北京市丰台区亿朋苑一区3号楼3单元202号的不动产.
116.24㎡ 丰台-玉泉营
一拍起拍价¥373万评估价 --2026-04-27 10:00:00开始
即将开始【广渠门外大街】| 北京市朝阳区广渠门外大街8号18层西座-1807
105.11㎡ 朝阳-广渠门
低于评估价30%一拍起拍价¥203万评估价¥290万2026-04-27 10:00:00开始
即将开始【鸿博家园】| 北京市朝阳区鸿博家园四区3号楼23层2单元2303
82.85㎡ 朝阳区-小红门
低于评估价20%一拍起拍价¥262万评估价¥327万2026-04-27 10:00:00开始
即将开始【鸿博家园】| 北京市朝阳区鸿博家园四区3号楼27层1单元2704
83.97㎡ 朝阳-小红门
低于评估价20%一拍起拍价¥261万评估价¥327万2026-04-27 10:00:00开始
即将开始北京市朝阳区工人体育场北路8号院4号楼12层11-1501室
155.15㎡ 朝阳
低于评估价30%一拍起拍价¥770万评估价¥1100万2026-04-27 10:00:00开始
即将开始【鸿博家园】| 北京市朝阳区鸿博家园四区3号楼25层1单元2503
82.85㎡ 朝阳-小红门
低于评估价20%一拍起拍价¥261万评估价¥326万2026-04-27 10:00:00开始







































