郡王府精装下叠别墅边户 院子大 送车位一个 有暖气 提包入住
-
588万
总价
-
4室2厅2卫
户型
-
183.37㎡
建筑面积
买房加房产交流群,省钱不踩雷
3000+人正在热聊
加入群聊
-
单价
32066元/平米
- 挂牌价格解析
-
楼层
4层
- 咨询楼层
-
套内
暂无数据
- 咨询套内使用面积
-
楼型
独栋
-
朝向
南
-
装修
精装修
-
年代
2013
-
发布
2025-07-27
-
咨询总首付
首付约223.2万
首付税费及佣金情况 -
深度测评
小区虎豹郡王府(邗江-京华城)
-
更多
楼户比、楼层高度、交易历史、抵押信息
房源描述(1)
-
核心卖点问经纪人
郡王府精装下叠别墅边户 院子大 送车位一个 有暖气 提包入住。优先联系。
-
业主心态问经纪人
房东因为换房而出售,希望有需求的人士联系看房定房。
-
小区配套问经纪人
小区干净整洁、门外有站台、银行、菜场、生活方便。
-
服务介绍问经纪人
本人经过国家考核取得经纪人资质;房子从签约开始实行一对一服务,根据买卖双方的情况确定所纳税费,交易结束才按规定收取中介费用。
-
税费分析房贷计算
房子满5年无营业税,一套房契税140平以内1%、140平以上1.5%;二套房契税140平以内1%、140平以上2%;三套房契税3%;个税1%。
-
户型解读问经纪人
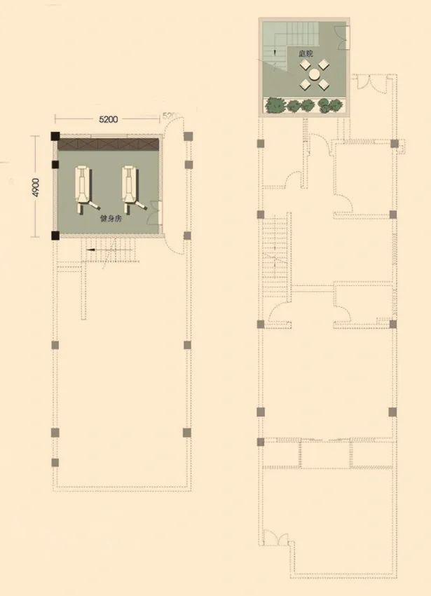
地下室达88平通汽车位、前侧院子80平、一楼客厅一室一厨一卫、二楼三室一卫前后阳台
周边配套
地址:孙庄路南、西外环路东(京华城向西800米)
交通综合评分
查看全部7.9
“较好”
超过扬州75.5%的小区
-
地铁公交
10.0
-
驾车出行
9.0
-
城际交通
4.0
户型齐全,主打主卧带卫,主卧朝南,卧室带阳台三居
虎豹郡王府户型主要有145平-362平的主卧带卫,主卧朝南,卧室带阳台的三居 、158平-290平的入户花园,主卧带卫,主卧朝南,带衣帽间的四居 、202平-309平的入户花园,主卧带卫,主卧朝南,带衣帽间的五居 。
*获取完整户型报告,同时会有免费语音讲解服务
-
13539元/㎡
本月挂牌均价
-
1.08%
环比上月
买房加房产交流群,省钱不踩雷
3000+人正在热聊
加入群聊
- 免费咨询
- 专业服务
- 区域解读
- 户型分析
免责声明:房源信息由网站用户提供,其真实性、合法性由信息提供者负责,最终以政府部门登记备案为准。本网站不声明或保证内容之正确性和可靠性,购买该房屋时,请谨慎核查。入学情况仅凭历史经验总结,在此不承诺升学事宜。请您在签订合同之前,切勿支付任何形式的费用,以免上当受骗。

