东湖雅居B区 105平精装三房两厅两卫 拎包入住
-
66.6万
总价
-
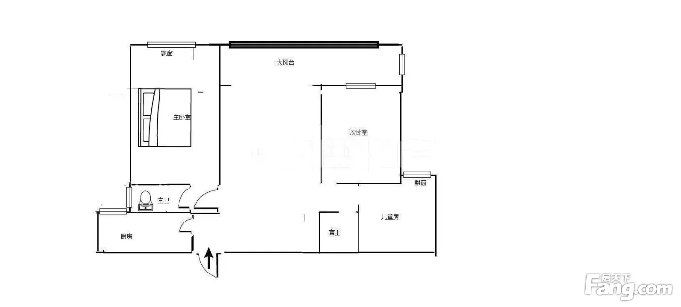
3室2厅2卫
户型
-
105㎡
建筑面积
-
单价
6343元/平米
- 挂牌价格解析
-
楼层
高层/33层
- 咨询楼层
-
套内
104㎡
- 咨询套内使用面积
-
楼型
板楼
-
朝向
南
-
装修
精装修
-
年代
2020
-
发布
2026-03-24
-
地铁
暂无数据
-
深度测评
小区银河东湖雅居(夷陵-夷陵)
-
更多
楼户比、楼层高度、交易历史、抵押信息
房源描述(1)
-
核心卖点问经纪人
东湖雅居B区105平精装大三房。拎包入住
周边配套
地址:锦江大道和吉祥路交汇处
交通综合评分
查看全部4.0
“一般”
超过宜昌12.6%的小区
-
地铁公交
10.0
本月均价 6399元/m²
环比上月 上涨 0.02%
同比去年 下跌 5.71%
猜你喜欢
同小区其它房源
-
5021元/㎡
本月挂牌均价
-
0.51%
环比上月
- 免费咨询
- 专业服务
- 区域解读
- 户型分析
免责声明:房源信息由网站用户提供,其真实性、合法性由信息提供者负责,最终以政府部门登记备案为准。本网站不声明或保证内容之正确性和可靠性,购买该房屋时,请谨慎核查。入学情况仅凭历史经验总结,在此不承诺升学事宜。请您在签订合同之前,切勿支付任何形式的费用,以免上当受骗。

