联排别墅跃5层 带两个车位 享五缘湾配套 使用面积大
-
758万
总价
-
5室2厅5卫
户型
-
259.12㎡
建筑面积
买房加房产交流群,省钱不踩雷
3000+人正在热聊
加入群聊
-
单价
29253元/平米
- 挂牌价格解析
-
楼层
5层
- 咨询楼层
-
套内
暂无数据
- 咨询套内使用面积
-
楼型
独栋
-
朝向
东
-
装修
精装修
-
年代
2009
-
发布
2026-01-25
-
地铁
距3号线坂尚站约905米
-
深度测评
小区翰林苑别墅(湖里-枋湖)
-
更多
楼户比、楼层高度、交易历史、抵押信息
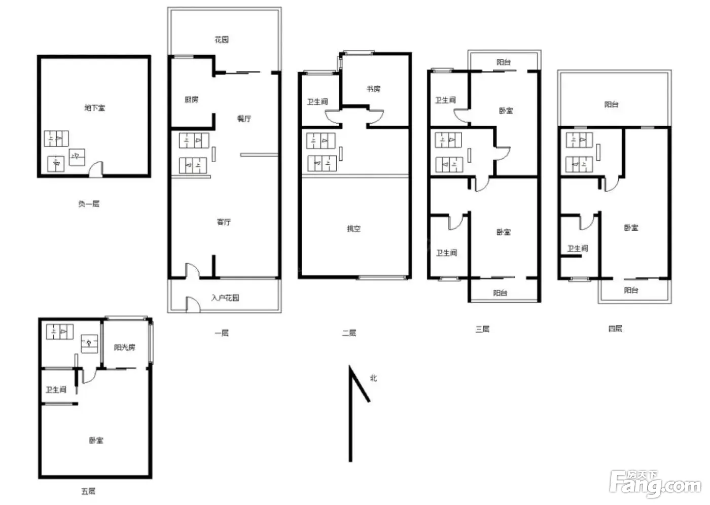
房源描述(1)
-
核心卖点问经纪人
联排别墅,跃5层,带两个车位,前后花园,使用面积大。 小区位于湖里区枋湖片区,临 近五缘湾,房子是2009年建成,开发商是华祥房地产开发有限公司,总高有52户,小区人车分流,封闭式管理,安保24。 小区总共有52套别墅,主打户型259平,285平户型,地上5层,地下1层,带两个车位,前后花园,楼上有带露台,南北通透户型。 这套房子是业主自住精装的,保养的很好,风格很时尚,用的都是环保材料,节省装修费用,省时省力,拎包入住。
-
业主心态问经纪人
房东置换,诚心出售,价格可以再谈,欢迎看房,随时恭候。
-
小区配套问经纪人
配套:五缘湾湿地公园,虎头山公园,湾悦城,乐都汇,天虹商场。
-
服务介绍问经纪人
本人从事房地产多年,公司有大量,欢迎进入我的店铺查看,欢迎随时电话咨询,相信我的专业,为您置业保驾护航。
周边配套
地址:枋湖枋湖路南侧
交通综合评分
查看全部6.7
“较好”
超过厦门76.8%的小区
-
地铁公交
10.0
-
城际交通
9.0
-
45441元/㎡
本月挂牌均价
-
1.03%
环比上月
买房加房产交流群,省钱不踩雷
3000+人正在热聊
加入群聊
- 免费咨询
- 专业服务
- 区域解读
- 户型分析
免责声明:房源信息由网站用户提供,其真实性、合法性由信息提供者负责,最终以政府部门登记备案为准。本网站不声明或保证内容之正确性和可靠性,购买该房屋时,请谨慎核查。入学情况仅凭历史经验总结,在此不承诺升学事宜。请您在签订合同之前,切勿支付任何形式的费用,以免上当受骗。


