福星惠誉.铂雅府南北通透户型好配套成熟环境优美近近
-
340万
总价
-
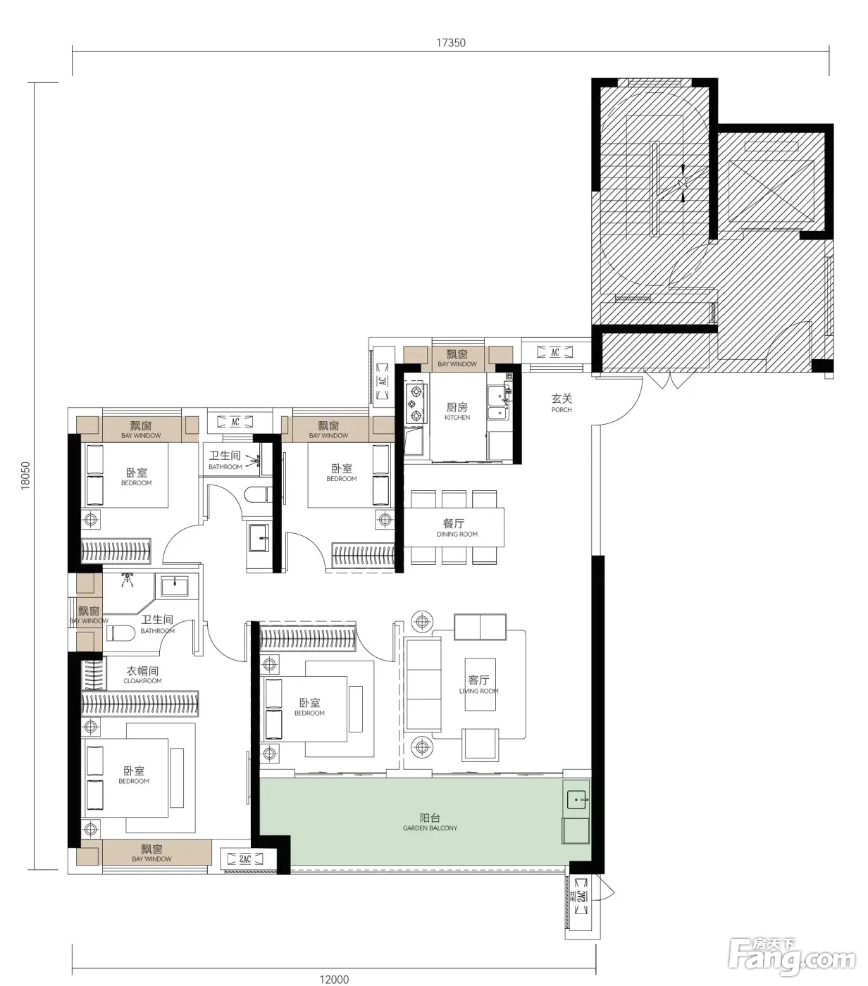
4室2厅2卫
户型
-
145㎡
建筑面积
买房加房产交流群,省钱不踩雷
3000+人正在热聊
-
单价
23448元/平米
- 挂牌价格解析
-
楼层
底层/6层
- 咨询楼层
-
套内
144㎡
- 咨询套内使用面积
-
楼型
板楼
-
朝向
西南
-
装修
简装修
-
年代
2026
-
发布
2025-10-19
-
地铁
距3号线香港路站约403米
-
咨询总首付
首付约102.2万
首付税费及佣金情况 -
深度测评
小区福星惠誉·铂雅府(江岸-竹叶山花桥)
-
更多
楼户比、楼层高度、交易历史、抵押信息
房源描述(1)
-
核心卖点问经纪人
1、该房源是售楼部新房,均为取得批准销(预)售的商品房,五证齐全。交易过程不收取任何费用,同时会有专属优惠和折扣给到您。 2、价格有效期:您所看到的价格是开发商均价,为了省去您不必要的麻烦,倘若发现相同房源更低或者超格时,请务必甄别谨防受骗。3、新房房源楼层朝向选择性多,不是一条固定房源!具体来电详询!
-
业主心态问经纪人
您好,欢迎您来到我的个人小店,自己在武汉从事房地产行业6年有余,对武汉的购房政策及租赁业务、二手房业务、新房业务都很熟悉,目前租赁及二手房业务主要经营的商圈是武昌中南、丁字桥、武昌火车站以及街道口商圈,新房业务遍布武汉全市。 从业以来一直秉持房源成交只是我们售后服务的开始,希望能通过我们彼此的努力,帮您找到那套属于您的家。从和您见面的那一刻起,我们的服务就已经在潜移默化中开始了,了解您的买房需求,根据您的需求配盘,了解相应房源的具体情况,带您看房并讲解,买卖双方碰面及签约,资金的监管,银行贷款流程,过户流程及交房流程等等,希望通过这些服务,让我们不仅是客户和的关系,更是朋友对朋友延续。
-
小区配套问经纪人
小区地理位置佳,绿化环境优越整洁,居民素质高,物业管理完善,适宜居住
-
服务介绍问经纪人
本人做房产多年,一直本着专业的房产知识,为您服务,我会在短的时间内帮您买好满意的房子,不让您错失任何好房子,更不让您每天为买房的事烦心,欢迎随时拨打我电话。
-
税费分析房贷计算
关于本房的税费信息情况,请电话联系我,我将详细的为您讲解!
-
户型解读问经纪人
房屋拥有相对宽松的尺寸,布局通透,动静分离,设计豪华
周边配套
户型齐全,主打南北通透,高附赠空间四居
福星惠誉·铂雅府户型主要有138平-172平的南北通透,高附赠空间的四居 、106平-106平的南北通透,高附赠空间的三居 。
*获取完整户型报告,同时会有免费语音讲解服务
-
15111元/㎡
本月挂牌均价
-
1.2%
环比上月
买房加房产交流群,省钱不踩雷
3000+人正在热聊
- 免费咨询
- 专业服务
- 区域解读
- 户型分析

