五道庙八中旁 多层4楼 2室 精装 出税
-
18.8万
总价
-
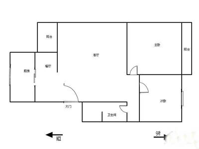
2室1厅1卫
户型
-
55㎡
建筑面积
-
单价
3419元/平米
- 挂牌价格解析
-
楼层
中楼层/6层
- 咨询楼层
-
套内
暂无数据
- 咨询套内使用面积
-
楼型
板楼
-
朝向
南北
-
装修
精装
-
供暖
集中供暖
-
发布
2023-09-10
-
地铁
暂无数据
-
深度测评
小区五道庙小区(潍城-火车站)
-
更多
楼户比、楼层高度、交易历史、抵押信息
周边配套
地址:人民街49号(爱国路和人民路交汇处八中对面)
交通综合评分
查看全部5.2
“一般”
超过潍坊21.4%的小区
-
地铁公交
10.0
-
城际交通
4.0
本月均价 4033元/m²
环比上月 下跌 2.75%
同比去年 下跌 1.47%
猜你喜欢
同小区其它房源
户型齐全,主打户型方正,明卫,明厨,客厅朝南,全明格局,双卧朝南二居
五道庙小区户型主要有65平-70平的户型方正,明卫,明厨,客厅朝南,全明格局,双卧朝南的二居 、40平-40平的户型方正,主卧朝南的一居 。
*获取完整户型报告,同时会有免费语音讲解服务
-
5041元/㎡
本月挂牌均价
-
持平
环比上月
免责声明:房源信息由网站用户提供,其真实性、合法性由信息提供者负责,最终以政府部门登记备案为准。本网站不声明或保证内容之正确性和可靠性,购买该房屋时,请谨慎核查。入学情况仅凭历史经验总结,在此不承诺升学事宜。请您在签订合同之前,切勿支付任何形式的费用,以免上当受骗。



