佳乐家近,精装微住,上下两层复式
-
300万
总价
-
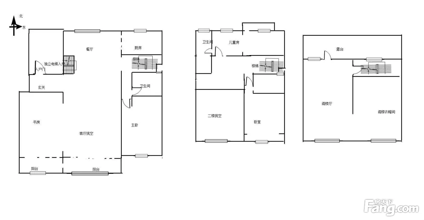
5室3厅
户型
-
296.58㎡
建筑面积
-
单价
10116元/平米
- 挂牌价格解析
-
楼层
高楼层/17层
- 咨询楼层
-
套内
暂无数据
- 咨询套内使用面积
-
楼型
板楼
-
朝向
南北
-
装修
精装
-
供暖
集中供暖
-
发布
2022-10-28
-
地铁
暂无数据
-
深度测评
小区丹桂里(奎文-新华路北)
-
更多
楼户比、楼层高度、交易历史、抵押信息
房源描述(1)
-
核心卖点问经纪人
相信为您推荐的这套房子您一定会满意,赶快行动吧,先到先得! 房屋年代∶2012年,房屋面积∶296平方米,朝向∶南北通透 1. 小区配备良好物业管理,让你享受宾至如归的服务; 2. 小区人文素质高,是您的居家的品质选择; 3. 小区环境安静舒适,让您拥有高品质的生活环境; 4. 小区绿化高,绿树成荫鸟语花香让您随时呼吸到新鲜空气。
-
业主心态问经纪人
房东置换,诚心出售,欢迎看房,随时恭候您的电话。 .
-
小区配套问经纪人
小区地理位置佳,绿化率高,环境整洁,居民素质高。 .
-
服务介绍问经纪人
公司有大量好房源,欢迎进入我的店铺查看,随时电话咨询,相信我的专业,为您置业安家保驾护航。
-
税费分析房贷计算
关于本房税费分析详情,请电话联系我,我将提供详细的税费情况。 .
-
户型解读问经纪人
本房源采光好,交通便利户型方正是园区里的好户型。 .
周边配套
交通综合评分
查看全部超过潍坊91.9%的小区
-
地铁公交
10.0
-
驾车出行
9.0
-
城际交通
4.0
本月均价 7448元/m²
环比上月 下跌 2.27%
同比去年 下跌 13.13%
猜你喜欢
同小区其它房源
-
6314元/㎡
本月挂牌均价
-
持平
环比上月
- 免费咨询
- 专业服务
- 区域解读
- 户型分析

