火车站南广场 金都南苑125平 三室 低价39万出售有钥匙
-
39万
总价
-
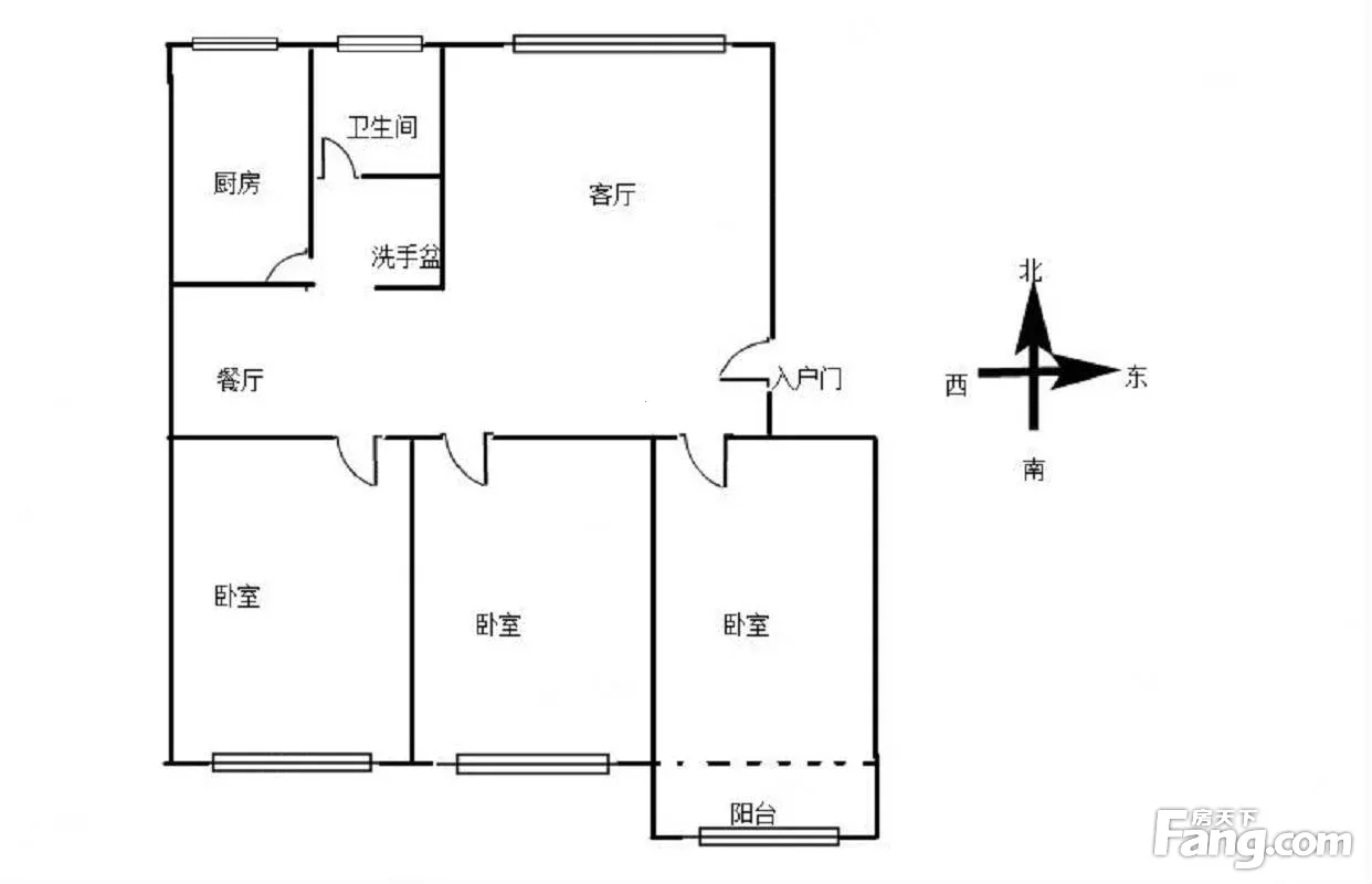
3室2厅1卫
户型
-
124.15㎡
建筑面积
-
单价
3141元/平米
- 挂牌价格解析
-
楼层
顶层/6层
- 咨询楼层
-
套内
暂无数据
- 咨询套内使用面积
-
楼型
板楼
-
朝向
南北
-
装修
简装修
-
年代
2009
-
发布
2025-10-10
-
深度测评
小区金都南苑(潍城-火车站)
-
更多
楼户比、楼层高度、交易历史、抵押信息
房源描述(1)
-
核心卖点问经纪人
【房屋简介】2009年建成的三居室,南北通透,视野开阔,高层位置,无遮挡光线好。户型设计合理,无浪费面积,餐厅客厅可分离,功能区分明确。室内简单装修,适合个性化改造。 【楼层情况】步梯房,楼层好,方便快捷。 【产权信息】70年产权,商品房住宅,产权手续完善,实拍视频和全景可供参考。 【配套设施】周边设施齐全,物业管理到位,保安24 班,居住环境安全舒适。 【推荐理由】社区环境健康向上,邻里关系和谐,生活便利度高。
-
业主心态问经纪人
售房原因:置换 房主因工作原因 现居住地与单位较远 诚心出售 产权清晰无抵押 价格可议 接受 看房方便 欢迎随时联系!
-
小区配套问经纪人
小区地理位置佳,绿化率高,环境整洁,居民素质高。 交通出行: 公交:1路、2路/k2路、5路、6路、7路、10路、12路区间、17路/k17路、18路、20路/k20路、21路、25路、28路、30路、33路、36路、38路、55路/k55路、56路/k56路(火车站)
-
服务介绍问经纪人
你好 我是曹艳华 从事房产顾问工作6年零差评 成功服务超百人安家置业 深耕潍城 对区域内新房二手房都有独特的认识 精准把控需求 擅长议价 为你省心省力省钱 坚守底线 相互尊重 没有套路 真诚才是
-
税费分析房贷计算
关于本房税费分析详情,请电话联系我,我将提供详细的税费情况。 .
-
交通出行问经纪人
公交:1路、2路/k2路、5路、6路、7路、10路、12路区间、17路/k17路、18路、20路/k20路、21路、25路、28路、30路、33路、36路、38路、55路/k55路、56路/k56路(火车站)
周边配套
交通综合评分
查看全部超过潍坊61.9%的小区
-
地铁公交
10.0
-
城际交通
4.0
本月均价 4679元/m²
环比上月 下跌 2.72%
同比去年 下跌 13.57%
猜你喜欢
同小区其它房源
户型齐全,主打户型方正,明厨,明卫,客厅朝南二居
金都南苑户型主要有64平-115平的户型方正,明厨,明卫,客厅朝南的二居 、83平-119平的户型方正,明厨的三居 、45平-91平的户型方正,明厨的一居 。
*获取完整户型报告,同时会有免费语音讲解服务
-
5064元/㎡
本月挂牌均价
-
持平
环比上月
- 免费咨询
- 专业服务
- 区域解读
- 户型分析

