北海路检察院单位房 送车位送地下室 颐清园随时看房
-
92万
总价
-
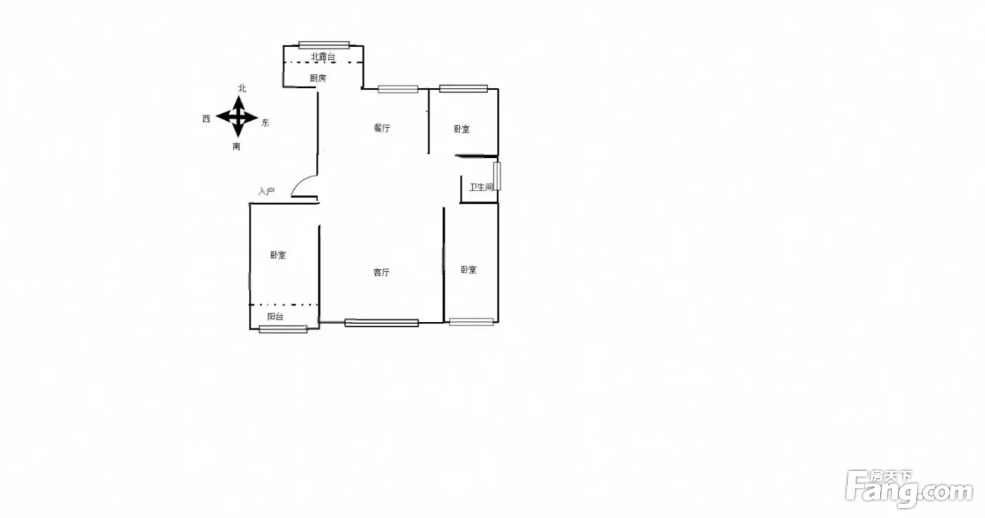
3室2厅2卫
户型
-
141.59㎡
建筑面积
-
单价
6498元/平米
- 挂牌价格解析
-
楼层
高层/24层
- 咨询楼层
-
套内
暂无数据
- 咨询套内使用面积
-
楼型
板楼
-
朝向
南北
-
装修
毛坯
-
年代
2023
-
发布
2025-09-30
-
地铁
暂无数据
-
深度测评
小区颐清园(高新-谷德广场)
-
更多
楼户比、楼层高度、交易历史、抵押信息
房源描述(1)
-
核心卖点问经纪人
【房屋信息】 1、房型好,两房朝南两房朝北;厨卫朝北。 2、房子是本小区同等房源性价比比较高的,低于市场价格5万—8万。 3、毛坯原房,可根据自己喜好装修,减少资金浪费。 4、交通便利,步行到新建轻轨站点仅需500米;公交车站仅需200米。 5、发展空间大,紧邻 小区旁正在建商务楼;超市,商场,商业街。 6、周边生活设施齐全,商场、超市、菜市场、银行、 等应有尽有!
-
业主心态问经纪人
业主工作调动,业主诚意出售,价格可谈!当时业主买房的时候精挑细选,所选房屋户型方正,楼层采光通风好,不冲路冲墙角,虽出售房屋但也是忍痛割爱
-
小区配套问经纪人
位置:小区地理位置佳,绿化率高,居民素质高 配套:有健身器材,小型篮球场,可供小区居民使用 车位:停车位充足,建有地上停车场和地下车库 保安:小区内24保安巡逻
-
服务介绍问经纪人
本人从事房地产多年,公司有大量好房源,欢迎进入我的店铺查看,欢迎随时电话咨询,相信我的专业,为您置业安家保驾护航。
-
税费分析房贷计算
新房: 房税费首套房契税1至3个点。 物业费2元到3元一平方。 购买新房主要税费: 契税:90平以内:1% ;90-124 平收1.5%;124平以上收2%(交房后地税收取) 注:以上收费仅供参考
周边配套
交通综合评分
查看全部超过潍坊10.2%的小区
-
地铁公交
10.0
-
驾车出行
9.0
本月均价 8245元/m²
环比上月 下跌 3.12%
同比去年 下跌 5.38%
猜你喜欢
同小区其它房源
-
6893元/㎡
本月挂牌均价
-
持平
环比上月
- 免费咨询
- 专业服务
- 区域解读
- 户型分析


