临渭区 朝阳华厦 3室2厅
-
77.8万元
总价
-
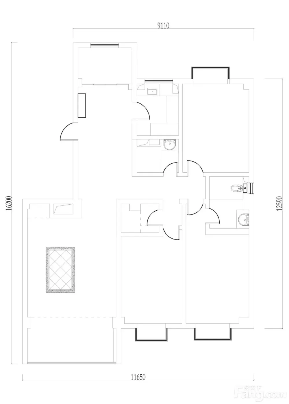
3室2厅2卫
户型
-
185㎡
建筑面积
-
单价
4205元/平米
- 挂牌价格解析
-
楼层
顶层/11层
- 咨询楼层
-
套内
暂无数据
- 咨询套内使用面积
-
朝向
南北
-
发布
2025-11-16
-
深度测评
小区朝阳华厦(临渭区-临渭区)
-
更多
楼户比、楼层高度、交易历史、抵押信息
业主自评
-
岁月寄歌
加入房天下2157天
接电时间:09:00-22:00
[福]房子简要介绍[福] [礼物]地面:瓷砖是东鹏900*900非标,客厅拼花是水刀切割实体拼接;卧室木地板为安信的实木复合多层,主卧与另两间卧室区分。 [礼物]墙体:为硅藻泥无机涂料。 [礼物]卫生间:瓷砖为全瓷,浴柜为实木。 [礼物]卧室:床头墙都是立体编织壁布,带双床头灯;南侧窗帘不透光,北侧部分透。 [礼物]定制柜:除橱柜外,有五组定制柜,分别为入户鞋柜,客厅酒柜,储藏室储藏柜,两个卧室通体衣柜,均为绿标实木复合多层板材,柜门为立体雕花。 [礼物]空间:除三室两厅两卫外,还有书房储藏室,大阳台,宽飘窗。 房子于2019年装修,2020年入住。
[福]房子简要介绍[福] [礼物]地面:瓷砖是东鹏900*900非标,客厅拼花是水刀切割实体拼接;卧室木地板为安信的实木复合多层,主卧与另两间卧室区分。 [礼物]墙体:为硅藻泥无机涂料。 [礼物]卫生间:瓷砖为全瓷,浴柜为实木。 [礼物]卧室:床头墙都是立体编织壁布,带双床头灯;南侧窗帘不透光,北侧部分透。 [礼物]定制柜:除橱柜外,有五组定制柜,分别为入户鞋柜,客厅酒柜,储藏室储藏柜,两个卧室通体衣柜,均为绿标实木复合多层板材,柜门为立体雕花。 [礼物]空间:除三室两厅两卫外,还有书房储藏室,大阳台,宽飘窗。 房子于2019年装修,2020年入住。
周边配套
地址:陕西省渭南市临渭区仓程路与朝阳大街十字北50米
交通综合评分
查看全部8.0
“较好”
超过渭南95.6%的小区
-
地铁公交
10.0
-
驾车出行
9.0
-
城际交通
4.5
本月均价 4557元/m²
环比上月 持平
同比去年 下跌 8.14%
-
5177元/㎡
本月挂牌均价
-
0.04%
环比上月
联系业主
免责声明:房源信息由网站用户提供,其真实性、合法性由信息提供者负责,最终以政府部门登记备案为准。本网站不声明或保证内容之正确性和可靠性,购买该房屋时,请谨慎核查。入学情况仅凭历史经验总结,在此不承诺升学事宜。请您在签订合同之前,切勿支付任何形式的费用,以免上当受骗。

