特价房|750万买228平一手精装现房即买即住 看山湖景观
-
1700万
总价
-
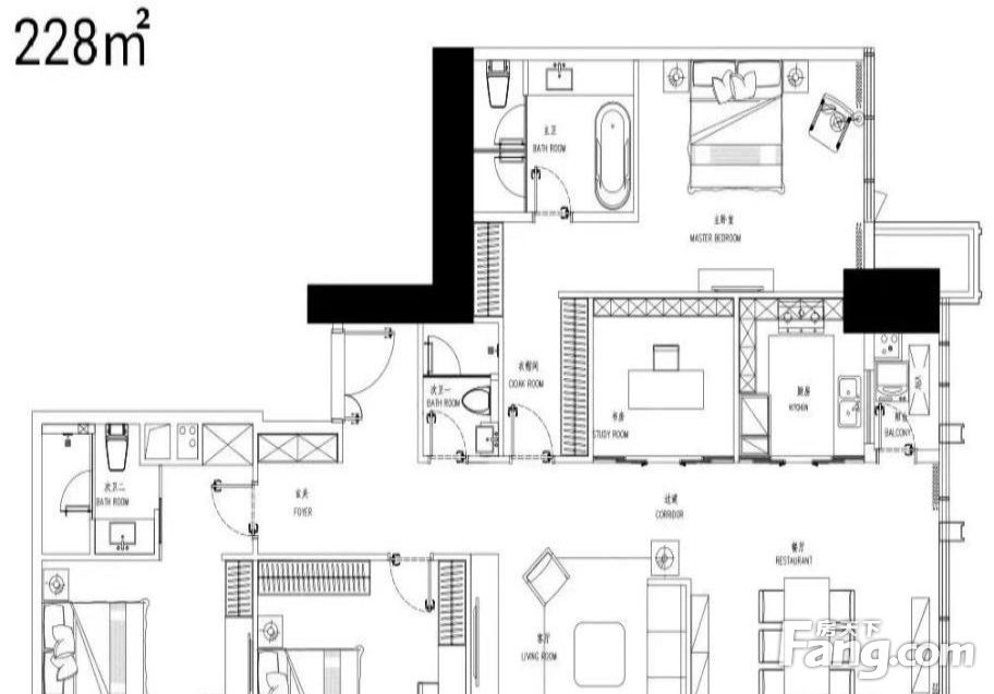
4室2厅3卫
户型
-
228㎡
建筑面积
买房加房产交流群,省钱不踩雷
3000+人正在热聊
-
单价
74561元/平米
- 挂牌价格解析
-
楼层
中层/50层
- 咨询楼层
-
套内
227㎡
- 咨询套内使用面积
-
楼型
板楼
-
朝向
南
-
装修
精装修
-
年代
2000
-
发布
2025-12-10
-
地铁
距5号线(环中线)长岭陂站约158米
-
咨询总首付
首付约446.5万
首付税费及佣金情况 -
深度测评
小区京基·御景峯(南山-西丽)
-
更多
楼户比、楼层高度、交易历史、抵押信息
-
核验码
246012392206乐有家
房源描述(1)
-
核心卖点问经纪人
75折!75折!75折! 在售:157平的,228平的总价1000万左右项目价值点 约64万㎡地标综合体,4万起精装现楼,即用无需等待 背靠塘朗山直面长岭陂水库,的山水景观 项目自带约3.7万㎡旗舰mall,外享宝能环球汇、塘朗城近20万㎡配套 长岭陂纯地铁口物业,覆盖4/5/6号线,一站抵达深圳北站, 建面约68-228㎡精装1-4房,3.4-3.7米奢阔,6梯6户和6梯4户奢华配置 京基地产深圳房地产企业10强,品质交付
-
业主心态问经纪人
房东置换,诚心出售,可以再谈,欢迎看房,随时恭候。
-
小区配套问经纪人
小区地理位置好,配套设施齐全,交通便利,居民素质高。
-
服务介绍问经纪人
本人在深圳从事房地产多年,对深圳各大区域都熟悉,每个盘源的信息了如指掌,多年来成交的房源上百套,以本人的专业、诚信、服务相信一定可以帮到您,选择一位可靠的让您更省心。 一
-
税费分析房贷计算
产权干净,税费清晰,欢迎来电咨询该房屋详情,静候您的来电!
-
户型解读问经纪人
房屋拥有相对宽松的尺寸,布局通透,动静分离,设计豪华
周边配套
交通综合评分
查看全部超过深圳56.8%的小区
-
地铁公交
9.0
-
驾车出行
10.0
本月均价 61737元/m²
环比上月 下跌 3.61%
同比去年 下跌 15.64%
猜你喜欢
同小区其它房源
-
63085元/㎡
本月挂牌均价
-
0.89%
环比上月
买房加房产交流群,省钱不踩雷
3000+人正在热聊
- 免费咨询
- 专业服务
- 区域解读
- 户型分析


