南山 天健悦桂府 3室2厅
-
1318万元
总价
-
3室2厅2卫
户型
-
118㎡
建筑面积
买房加房产交流群,省钱不踩雷
3000+人正在热聊
加入群聊
-
单价
111695元/平米
- 挂牌价格解析
-
楼层
中层/44层
- 咨询楼层
-
套内
暂无数据
- 咨询套内使用面积
-
朝向
东南
-
发布
2025-02-21
-
地铁
距1号线(罗宝线)前海湾站约885米
-
咨询总首付
首付约956.7万
首付税费及佣金情况 -
深度测评
小区天健悦桂府(南山-前海)
-
更多
楼户比、楼层高度、交易历史、抵押信息
业主自评
-
柚柚2018
加入房天下2853天
接电时间:09:00-22:00
周边配套
地址:桂湾片区创新九街与十一号路交汇处天健悦桂府展示中心
交通综合评分
查看全部8.5
“较好”
超过深圳0.0%的小区
-
地铁公交
10.0
-
驾车出行
10.0
-
城际交通
5.0
本月均价 106321元/m²
环比上月 下跌 1.11%
同比去年 下跌 13.85%
猜你喜欢
同小区其它房源
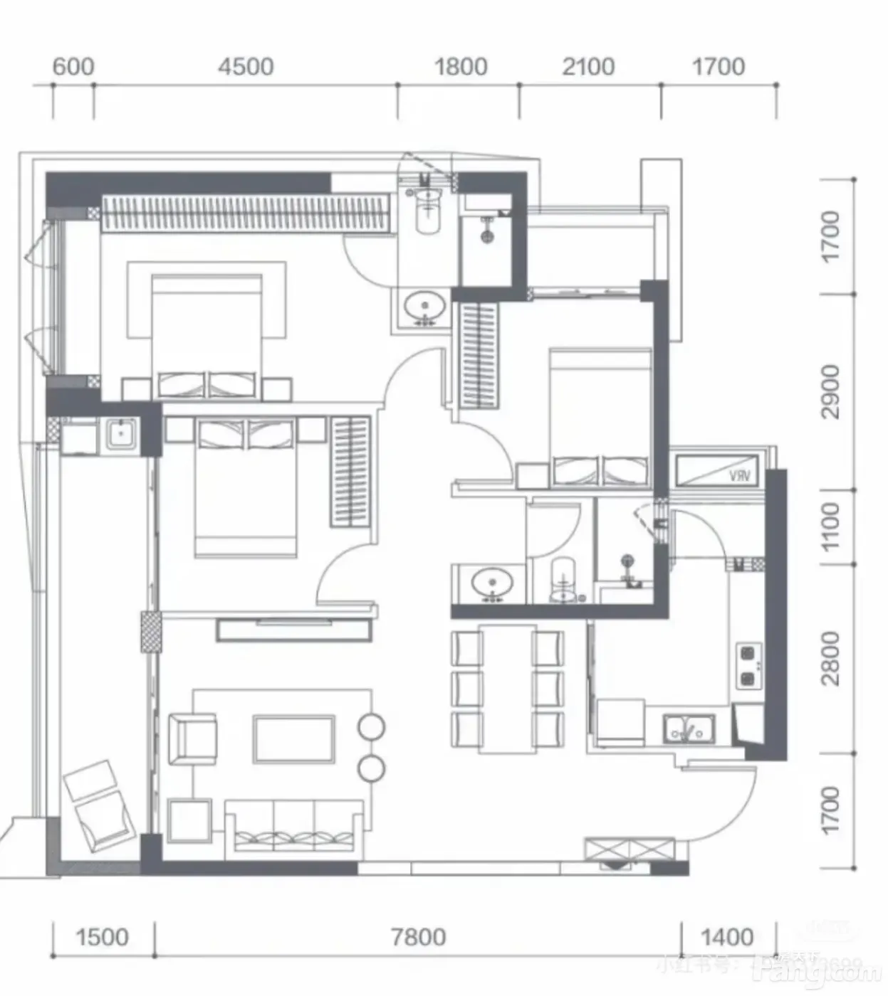
户型齐全,主打南北通透,户型方正,客厅朝南,卧室朝南三居
天健悦桂府户型主要有116平-118平的南北通透,户型方正,客厅朝南,卧室朝南的三居 、162平-162平的南北通透,户型方正的四居 。
*获取完整户型报告,同时会有免费语音讲解服务
-
80201元/㎡
本月挂牌均价
-
0.67%
环比上月
买房加房产交流群,省钱不踩雷
3000+人正在热聊
加入群聊
联系业主
免责声明:房源信息由网站用户提供,其真实性、合法性由信息提供者负责,最终以政府部门登记备案为准。本网站不声明或保证内容之正确性和可靠性,购买该房屋时,请谨慎核查。入学情况仅凭历史经验总结,在此不承诺升学事宜。请您在签订合同之前,切勿支付任何形式的费用,以免上当受骗。

