惠民馨苑 3室 南北通透 采光好 楼下万泉公园 育源
-
170万
总价
-
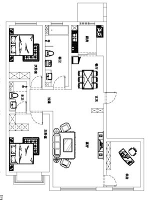
3室2厅
户型
-
147.5㎡
建筑面积
买房加房产交流群,省钱不踩雷
3000+人正在热聊
加入群聊
-
单价
11526元/平米
- 挂牌价格解析
-
楼层
中楼层/33层
- 咨询楼层
-
套内
暂无数据
- 咨询套内使用面积
-
楼型
板楼
-
朝向
南北
-
装修
其他
-
供暖
集中供暖
-
发布
2023-06-19
-
咨询总首付
首付约59.1万
首付税费及佣金情况 -
深度测评
小区惠民馨苑(沈河-万柳塘公园)
-
更多
楼户比、楼层高度、交易历史、抵押信息
周边配套
地址:万泉街20号
交通综合评分
查看全部5.3
“一般”
超过沈阳68.2%的小区
-
地铁公交
10.0
-
城际交通
4.5
本月均价 11439元/m²
环比上月 上涨 7.86%
同比去年 下跌 2.76%
猜你喜欢
同小区其它房源
户型齐全,主打户型方正,明厨,客厅朝南,双卧朝南三居
惠民馨苑户型主要有87平-149平的户型方正,明厨,客厅朝南,双卧朝南的三居 、71平-117平的户型方正,明厨,明卫,客厅朝南,全明格局,主卧朝南的二居 、50平-50平的明厨,客厅朝南,主卧朝南的一居 。
*获取完整户型报告,同时会有免费语音讲解服务
-
9456元/㎡
本月挂牌均价
-
0.86%
环比上月
买房加房产交流群,省钱不踩雷
3000+人正在热聊
加入群聊
免责声明:房源信息由网站用户提供,其真实性、合法性由信息提供者负责,最终以政府部门登记备案为准。本网站不声明或保证内容之正确性和可靠性,购买该房屋时,请谨慎核查。入学情况仅凭历史经验总结,在此不承诺升学事宜。请您在签订合同之前,切勿支付任何形式的费用,以免上当受骗。



