浑南软件园低密园区办公环境 高 配套齐全 停车方便
-
68万
总价
-
毛坯
装修
-
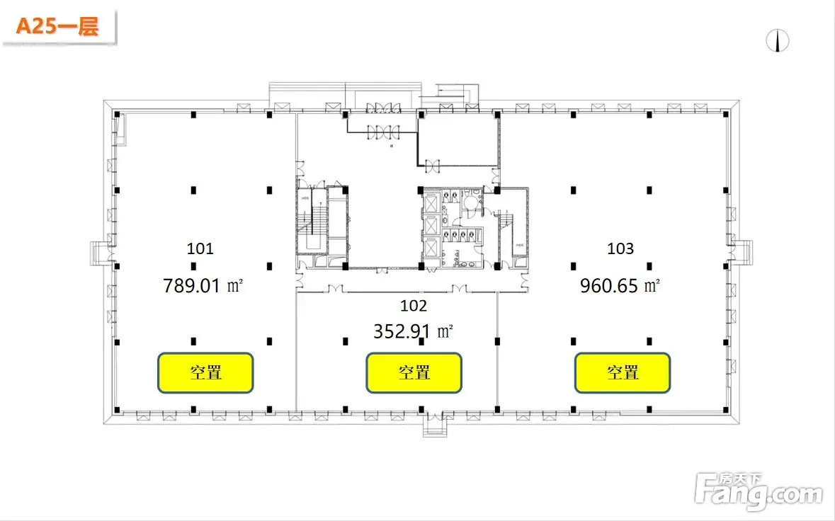
80㎡
建筑面积
买房加房产交流群,省钱不踩雷
3000+人正在热聊
-
楼层
低层/18层
-
单价
8500元/平米
-
楼盘名称
沈阳国际软件园
-
区域
浑南
-
使用面积
56㎡
-
物业费
10.5元/平米·月
-
类型
纯写字楼
-
等级
甲级
-
挂牌时间
2026-01-07
房源描述(1)
-
核心卖点问经纪人
更多房源点击我的头像进入我的店铺 一、众达联行—房源介绍 (1)项目名称:浑南软件园 (2)建筑面积:80-1000㎡ (3)租金:面议 (4)装修:毛坯 (5)交通: 众达联行专业办公选址专家,专业商业地产代理公司,已拥有华润大厦、新地中心、财富中心、茂业大厦、恒隆中心、北约客、北方传媒、中海国际中心、中韩大厦、嘉里中心万科中心大厦、前海人寿、环球金融中心、夏宫、万鑫、清华同方、软件园、中信泰富,中粮、泰和、龙之梦等全市200多家合作伙伴。 公司秉承“专业经营,诚信服务,客户至上 ”,坚持“诚实、专业、热情、负责”,以*的服务理念,以专业的商业地产经验,为不同类型的客户提供更高更*的服务。
-
服务介绍问经纪人
众达联行,专业商业地产代理公司,已拥有华润大厦、新地中心、财富中心、茂业大厦、恒隆中心、北约客、北方传媒、中海国际中心、中韩大厦、嘉里中心等全市200多家合作伙伴。
-
周边配套问经纪人
1、{房型结构}:真实图片,房屋正气通透格局方正,得房率高72%,阳光充足,精装修,拎包即用。 2、{地理位置}:地铁口,交通便利、沈阳核心繁华地段,周边多条交通路线。 3、{周边环境}:周边配套成熟有酒店,购物中心,银行,餐厅,美食多多,员工就餐不愁。 4、{产权核实}:此房已确定产权清晰,放心入驻,如果这套房源不适合您,我公司有沈阳市近万套商业写字间供您选择!
-
交通出行问经纪人
1、全程免费看房,为您省时、省力! 2、专业团队为您匹配房源,让您省心、放心! 3、强大的资源系统让您360度全面了解项目、市场! 4、带看、签约、验房、交接全程参与,用无微不至的服务让您满意! 5、可免费提供全市写字楼市场报告、法律咨询、财税咨询、装修咨询、培训咨询。
周边配套
交通综合评分
查看全部超过沈阳0.0%的小区
-
地铁公交
8.0
-
驾车出行
10.0
猜你喜欢
同小区其它写字楼
- 免费咨询
- 专业服务
- 区域解读
- 户型分析


