台商区 盛丰家园 南北通板式房 低楼层改善型2房时尚装修
-
165万
总价
-
3室2厅2卫
户型
-
113㎡
建筑面积
买房加房产交流群,省钱不踩雷
3000+人正在热聊
-
单价
14602元/平米
- 挂牌价格解析
-
楼层
底层/17层
- 咨询楼层
-
套内
暂无数据
- 咨询套内使用面积
-
楼型
板楼
-
朝向
南北
-
装修
精装修
-
年代
2019
-
发布
2025-12-18
-
深度测评
小区盛丰嘉园(龙湖-台商投资片区)
-
更多
楼户比、楼层高度、交易历史、抵押信息
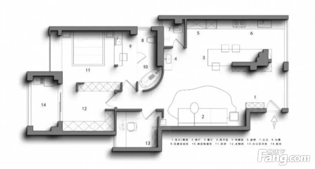
房源描述(1)
-
核心卖点问经纪人
本人承诺亲自看过现房,所有图片视频均为本人亲手拍摄,情况较为清楚,欢迎咨询 1、位置:盛丰嘉园 2、物业:盛州物业 3、面积套型:113平2房2厅2卫 4、室内情况:时尚装修 5、楼层:低楼层 6、价格:14600一平 7、其他优势:业主诚心出售,有钥匙,另有多套 ,业主直接委托,看房,买房卖房请认准我
-
业主心态问经纪人
房子产权清晰,安全有保障,欢迎您看房,提前预约即可看房,如需了解其他信息请与我联系,价格合适就出手。寻找有缘人,业主另有发展购置了新房,有心出售。
-
小区配套问经纪人
位置:小区地理位置佳,绿化率高,居民素质高 配套:有健身器材,小型篮球场,可供小区居民使用 车位:停车位充足,建有地上停车场和地下车库 保安:小区内24保安巡逻
-
服务介绍问经纪人
本人从事房地产多年,公司有大量好房源,欢迎进入我的店铺查看,欢迎随时电话咨询,相信我的专业,为您置业安家保驾护航。
周边配套
交通综合评分
查看全部超过汕头31.5%的小区
-
地铁公交
10.0
-
驾车出行
10.0
-
城际交通
4.0
本月均价 14000元/m²
环比上月 上涨 1.15%
同比去年 上涨 5.01%
-
10759元/㎡
本月挂牌均价
-
1.82%
环比上月
买房加房产交流群,省钱不踩雷
3000+人正在热聊
- 免费咨询
- 专业服务
- 区域解读
- 户型分析

