小区北侧三号线口 南侧南二环东沿线
-
118万
总价
-
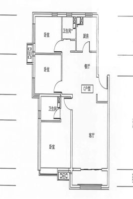
3室2厅1卫
户型
-
109.03㎡
建筑面积
买房加房产交流群,省钱不踩雷
3000+人正在热聊
加入群聊
-
单价
10823元/平米
- 挂牌价格解析
-
楼层
中层/23层
- 咨询楼层
-
套内
108.03㎡
- 咨询套内使用面积
-
楼型
板楼
-
朝向
南
-
装修
精装修
-
年代
2018
-
发布
2025-12-05
-
地铁
距3号线南豆站约451米
-
咨询总首付
首付约40.1万
首付税费及佣金情况 -
深度测评
小区富力城(高新-南豆)
-
更多
楼户比、楼层高度、交易历史、抵押信息
房源描述(1)
周边配套
地址:东至太行大街、西至昆仑大街、南至南二环东延线、北至学苑路
本月均价 11134元/m²
环比上月 下跌 0.98%
同比去年 下跌 13.9%
猜你喜欢
同小区其它房源
户型齐全,主打南北通透,客厅朝南三居
富力城户型主要有65平-134平的南北通透,客厅朝南的三居 、88平-89平的户型方正,主卧朝南的二居 、146平-146平的南北通透,户型方正的四居 。
*获取完整户型报告,同时会有免费语音讲解服务
买房加房产交流群,省钱不踩雷
3000+人正在热聊
加入群聊
- 免费咨询
- 专业服务
- 区域解读
- 户型分析
免责声明:房源信息由网站用户提供,其真实性、合法性由信息提供者负责,最终以政府部门登记备案为准。本网站不声明或保证内容之正确性和可靠性,购买该房屋时,请谨慎核查。入学情况仅凭历史经验总结,在此不承诺升学事宜。请您在签订合同之前,切勿支付任何形式的费用,以免上当受骗。


