大开间,小区中心位置,居家装修,价格好谈,诚意出售
-
289万
总价
-
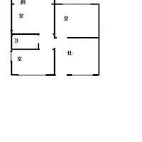
3室1厅
户型
-
68.56㎡
建筑面积
买房加房产交流群,省钱不踩雷
3000+人正在热聊
加入群聊
-
单价
42153元/平米
- 挂牌价格解析
-
楼层
高楼层/6层
- 咨询楼层
-
套内
暂无数据
- 咨询套内使用面积
-
朝向
南
-
装修
简装
-
年代
1987
-
发布
2025-08-03
-
地铁
距1号线彭浦新村站约837米
-
咨询总首付
首付约89.9万
首付税费及佣金情况 -
深度测评
小区场中路1985弄小区(静安-彭浦)
-
更多
楼户比、楼层高度、交易历史、抵押信息
周边配套
地址:场中路1985弄
交通综合评分
查看全部4.0
“一般”
超过上海92.8%的小区
-
地铁公交
10.0
本月均价 36567元/m²
环比上月 持平
同比去年 下跌 19.7%
猜你喜欢
同小区其它房源
买房加房产交流群,省钱不踩雷
3000+人正在热聊
加入群聊
免责声明:房源信息由网站用户提供,其真实性、合法性由信息提供者负责,最终以政府部门登记备案为准。本网站不声明或保证内容之正确性和可靠性,购买该房屋时,请谨慎核查。入学情况仅凭历史经验总结,在此不承诺升学事宜。请您在签订合同之前,切勿支付任何形式的费用,以免上当受骗。



