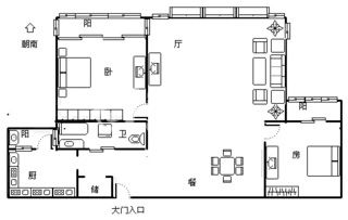
看房方便 业主诚意出售 南北两房 带院子
-
1050万
总价
-
2室2厅
户型
-
107.07㎡
建筑面积
买房加房产交流群,省钱不踩雷
3000+人正在热聊
加入群聊
-
单价
98067元/平米
- 挂牌价格解析
-
楼层
低楼层/13层
- 咨询楼层
-
套内
暂无数据
- 咨询套内使用面积
-
楼型
板楼
-
朝向
南
-
装修
简装
-
供暖
自供暖
-
发布
2026-01-18
-
地铁
距1号线上海南站约533米
-
咨询总首付
首付约805.1万
首付税费及佣金情况 -
深度测评
小区海上名门(徐汇-康健)
-
更多
楼户比、楼层高度、交易历史、抵押信息
周边配套
地址:柳州路181弄
交通综合评分
查看全部8.5
“较好”
超过上海78.8%的小区
-
地铁公交
10.0
-
驾车出行
10.0
-
城际交通
5.0
本月均价 99935元/m²
环比上月 持平
同比去年 上涨 2.15%
猜你喜欢
同小区其它房源
-
67923元/㎡
本月挂牌均价
-
持平
环比上月
买房加房产交流群,省钱不踩雷
3000+人正在热聊
加入群聊
免责声明:房源信息由网站用户提供,其真实性、合法性由信息提供者负责,最终以政府部门登记备案为准。本网站不声明或保证内容之正确性和可靠性,购买该房屋时,请谨慎核查。入学情况仅凭历史经验总结,在此不承诺升学事宜。请您在签订合同之前,切勿支付任何形式的费用,以免上当受骗。



