品质小区+配套好+近D铁+环境好+业主诚心+业主挂牌可议价
-
620万
总价
-
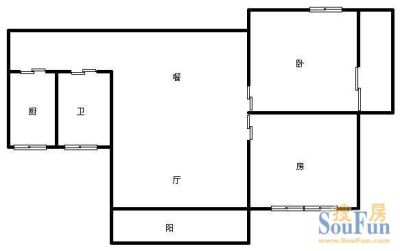
2室1厅1卫
户型
-
81.68㎡
建筑面积
买房加房产交流群,省钱不踩雷
3000+人正在热聊
-
单价
75906元/平米
- 挂牌价格解析
-
楼层
底层/19层
- 咨询楼层
-
套内
80.68㎡
- 咨询套内使用面积
-
楼型
板楼
-
朝向
南
-
装修
精装修
-
年代
1997
-
发布
2025-11-30
-
地铁
距4号线上海体育场站约664米
-
咨询总首付
首付约264.5万
首付税费及佣金情况 -
深度测评
小区爱中爱华公寓(徐汇-万体馆)
-
更多
楼户比、楼层高度、交易历史、抵押信息
-
核验码
202000196747
房源描述(1)
-
核心卖点问经纪人
外销房 品质很好 爱中爱华公寓是两栋楼,爱华是不靠马路的那栋。相对于比较安静,有单独的门卫室。97年外销房,居住群体大都为老年人和年轻上班族,安逸舒适。
-
业主心态问经纪人
【房屋情况】初始挂牌在我这里一手挂牌,一直帮业主细心打理此房到现在,房东对我和我店长非常认可。价格给到的也是朋友价格!房东卖掉置换其他区域,目前已相中已下定,看中价格可以适当谈,看房全天家里有人。给我个电话基本可看!房东也是非常诚意卖!【房屋价值】好房子之所以成其为好房子是因为遇到了懂她的主人,承认了她的价值!同时,选择诚信置业顾问,可以使您选房买房更加省心,节约您宝贵的时间,事半功倍
-
小区配套问经纪人
医院:龙华医院,中山医院 公园:东安公园,徐家汇公园 商场:正大乐城,绿地缤纷城,保利时光里,星游城 都非常近的500米,左右
-
服务介绍问经纪人
本人做房产多年,一直本着专业的房产知识,为您服务,我会在短的时间内帮您买好满意的房子,不让您错失任何好房子,更不让您每天为买房的事烦心,欢迎随时拨打我电话。
-
税费分析房贷计算
满五年普通住宅,无增值税,无抵押贷款,方便交易,节省了客户购房成本和时间
-
户型解读问经纪人
全南户型,可改3房,得房率高
周边配套
交通综合评分
查看全部超过上海98.6%的小区
-
地铁公交
10.0
-
城际交通
5.0
本月均价 92492元/m²
环比上月 持平
同比去年 下跌 5.37%
猜你喜欢
同小区其它房源
-
85431元/㎡
本月挂牌均价
-
持平
环比上月
买房加房产交流群,省钱不踩雷
3000+人正在热聊
- 免费咨询
- 专业服务
- 区域解读
- 户型分析

