轨交200米 精装两房两卫(可做三室)中楼层位置好 税各付
-
158万
总价
-
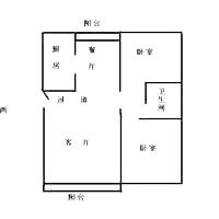
2室2厅2卫
户型
-
82㎡
建筑面积
买房加房产交流群,省钱不踩雷
3000+人正在热聊
加入群聊
-
单价
19268元/平米
- 挂牌价格解析
-
楼层
中层/6层
- 咨询楼层
-
套内
80㎡
- 咨询套内使用面积
-
楼型
板楼
-
朝向
南
-
装修
豪华装修
-
年代
2005
-
发布
2025-12-18
-
地铁
距9号线松江体育中心站约783米
-
咨询总首付
首付约40.3万
首付税费及佣金情况 -
深度测评
小区方舟园三村(松江-松江老城)
-
更多
楼户比、楼层高度、交易历史、抵押信息
-
核验码
202408710751
房源描述(1)
周边配套
地址:荣乐中路30弄
交通综合评分
查看全部6.6
“较好”
超过上海85.7%的小区
-
地铁公交
9.0
-
驾车出行
10.0
本月均价 22605元/m²
环比上月 持平
同比去年 下跌 25.02%
猜你喜欢
同小区其它房源
户型齐全,主打户型方正,明厨,明卫,双卧朝南,主卧朝南三居
方舟园三村户型主要有98平-120平的户型方正,明厨,明卫,双卧朝南,主卧朝南的三居 、81平-87平的户型方正,明厨,明卫,主卧朝南的二居 。
*获取完整户型报告,同时会有免费语音讲解服务
-
23837元/㎡
本月挂牌均价
-
持平
环比上月
买房加房产交流群,省钱不踩雷
3000+人正在热聊
加入群聊
- 免费咨询
- 专业服务
- 区域解读
- 户型分析
免责声明:房源信息由网站用户提供,其真实性、合法性由信息提供者负责,最终以政府部门登记备案为准。本网站不声明或保证内容之正确性和可靠性,购买该房屋时,请谨慎核查。入学情况仅凭历史经验总结,在此不承诺升学事宜。请您在签订合同之前,切勿支付任何形式的费用,以免上当受骗。

