泰晤士旁边 原野花园 豪华装修上叠别墅 保养好 房东诚心卖
-
1100万
总价
-
4室2厅3卫
户型
-
180㎡
建筑面积
买房加房产交流群,省钱不踩雷
3000+人正在热聊
加入群聊
-
单价
61111元/平米
- 挂牌价格解析
-
楼层
4层
- 咨询楼层
-
套内
178㎡
- 咨询套内使用面积
-
楼型
叠加
-
朝向
南
-
装修
豪华装修
-
年代
2011
-
发布
2025-07-04
-
咨询总首付
首付约329.4万
首付税费及佣金情况 -
深度测评
小区原野花园(松江-松江新城)
-
更多
楼户比、楼层高度、交易历史、抵押信息
-
核验码
202308571960
房源描述(1)
-
核心卖点问经纪人
性价比高!理由:1、环境优美,物业好,!2、经典户型,采光好,性价比高,有房源!3、周边配套设施齐全,成熟社区!
-
业主心态问经纪人
业主很信任我,我能了解业主卖房新的动态。目前市场交易量平稳,政策已经基本稳定,是市场触底入手的好时候。请不要错过性价比高的好房。
-
小区配套问经纪人
位置:小区地理位置佳,绿化,居民素质高 配套:有健身器材,小型篮球场,可供小区居民使用 车位:停车位充足,建有地上停车场和地下车库 保安:小区内24保安巡逻
-
服务介绍问经纪人
本人从事房地产多年,公司有大量好房源,欢迎进入我的店铺查看,欢迎随时电话咨询,相信我的专业,为您置业安家保驾护航。
-
税费分析房贷计算
新房: 房税费首套房契税1至3个点。 物业费2元到3元一平方。 购买新房主要税费: 契税:90平以内:1% ;90-124 平收1.5%;124平以上收2%(交房后地税收取) 注:以上收费仅供参考
-
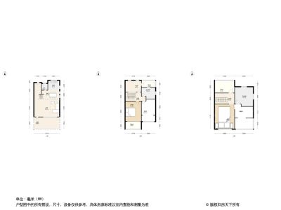
户型解读问经纪人
房屋拥有相对宽松的尺寸,布局通透,动静分离,设计豪华
周边配套
地址:文诚路1777弄2-186双号、252号、17-259单号
交通综合评分
查看全部5.0
“一般”
超过上海8.8%的小区
-
地铁公交
5.0
-
驾车出行
10.0
猜你喜欢
同小区其它房源
户型齐全,主打户型方正,明厨,明卫,客厅朝南,全明格局,双阳台,独立衣帽间,主卧朝南四居
原野花园户型主要有178平-202平的户型方正,明厨,明卫,客厅朝南,全明格局,双阳台,独立衣帽间,主卧朝南的四居 、196平-203平的户型方正,主卧朝南的五居 。
*获取完整户型报告,同时会有免费语音讲解服务
-
36723元/㎡
本月挂牌均价
-
持平
环比上月
买房加房产交流群,省钱不踩雷
3000+人正在热聊
加入群聊
- 免费咨询
- 专业服务
- 区域解读
- 户型分析
免责声明:房源信息由网站用户提供,其真实性、合法性由信息提供者负责,最终以政府部门登记备案为准。本网站不声明或保证内容之正确性和可靠性,购买该房屋时,请谨慎核查。入学情况仅凭历史经验总结,在此不承诺升学事宜。请您在签订合同之前,切勿支付任何形式的费用,以免上当受骗。

