西郊美德苑 电梯房 小区新 双卫 装修好 南北通透
-
340万
总价
-
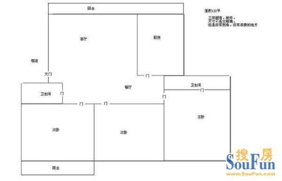
3室2厅2卫
户型
-
121.01㎡
建筑面积
-
单价
28097元/平米
- 挂牌价格解析
-
楼层
高层/21层
- 咨询楼层
-
套内
120.01㎡
- 咨询套内使用面积
-
楼型
板楼
-
朝向
南北
-
装修
简装修
-
年代
2014
-
发布
2026-02-10
-
咨询总首付
首付约158.3万
首付税费及佣金情况 -
深度测评
小区西郊美德苑(青浦-徐泾)
-
更多
楼户比、楼层高度、交易历史、抵押信息
-
核验码
202409315033
房源描述(1)
-
核心卖点问经纪人
保存模版 【房源介绍】 ①、【产证面积】:121平。 ②、【房屋售价】: (房-东-真-实-价)。 ③、【税费参考】:此房满五年,少税。 ④、【户型介绍】:户型正气,南北通透,采光好,而且房间都比较大 业主心态
-
业主心态问经纪人
1.房东诚心出售,而且还是税费少 因小区户型好 户型卖一套少一套 2.这套套房子的价格是前两天双方谈价,得到的新价格,非常有性价比 产权清晰,交易透明,免去您一切的后顾之忧! 3.房东已经在其他地方定好房子,所以诚心出售,价到即售
-
小区配套问经纪人
小区地理位置佳,绿化环境优越整洁,居民素质高,物业管理完善,适宜居住
-
服务介绍问经纪人
①.我是中佑地产小侯,本人踏入本商圈(华漕、徐泾、赵巷、青浦)已有多年,熟悉附近所有性价比高的。来电时请告诉我您的需求,我会马上安排3至5套以上的带您亲自鉴赏。 ②.本人擅于谈判,相信“唯有找准人,才
-
税费分析房贷计算
关于本房的税费信息情况,请电话联系我,我将详细的为您讲解!
-
户型解读问经纪人
房屋拥有相对宽松的尺寸,布局通透,动静分离,设计豪华
周边配套
交通综合评分
查看全部超过上海23.3%的小区
-
地铁公交
8.0
-
驾车出行
10.0
本月均价 36474元/m²
环比上月 持平
同比去年 下跌 7.87%
猜你喜欢
同小区其它房源
-
56009元/㎡
本月挂牌均价
-
持平
环比上月
- 免费咨询
- 专业服务
- 区域解读
- 户型分析


