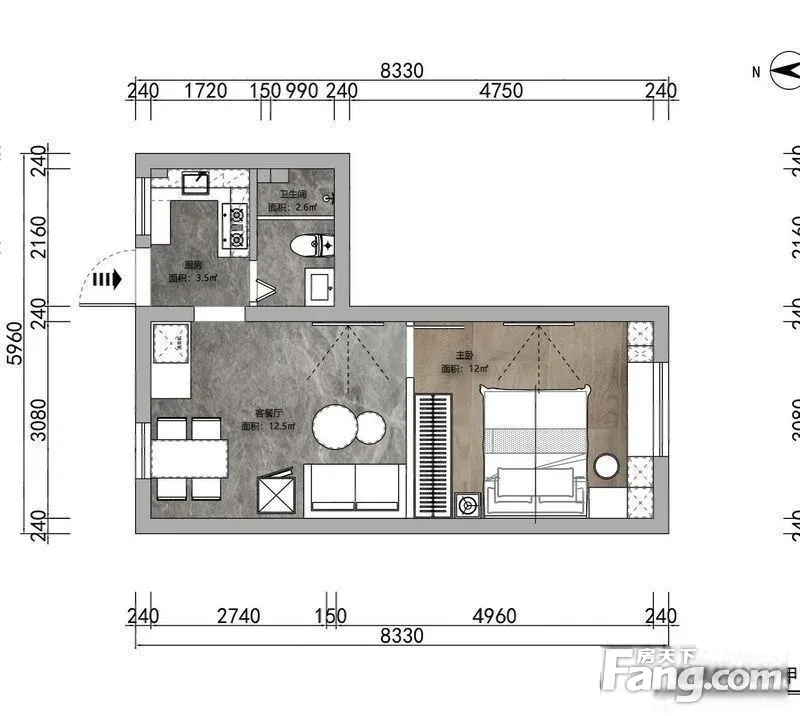
彭浦新村 43平2居 南北向精装修
-
138万
总价
-
2室1厅1卫
户型
-
43㎡
建筑面积
买房加房产交流群,省钱不踩雷
3000+人正在热聊
-
单价
32093元/平米
- 挂牌价格解析
-
楼层
中层/6层
- 咨询楼层
-
套内
36.55㎡
- 咨询套内使用面积
-
楼型
砖楼
-
朝向
南北
-
装修
精装修
-
年代
1997
-
发布
2025-08-30
-
地铁
距1号线彭浦新村站约289米
-
咨询总首付
首付约35.3万
首付税费及佣金情况 -
深度测评
小区彭浦新村(静安-彭浦)
-
更多
楼户比、楼层高度、交易历史、抵押信息
-
核验码
202101182942
房源描述(1)
-
核心卖点问经纪人
我们的服务目标,在交易的每个环节中力争使客户体验*的服务,我们坚信客户取得成功是我们长远可持续发展的基石。 个人介绍:我是彭浦新村的社区,专门为本小区客户/业主提供服务已经5年了,对该小区的信息(周边设施、环境、社区特点)了解充,同时对于该区域内的其他楼盘了解透彻,如果您来电垂询,我将承诺您会获得本人真源 1、本小区物业连续N次被评为“先进物业” 2、小区实行人车流,无需担心老人小孩在小区内安全 3、周边设施: 4、该房为面积:43平方米,户型:2室0厅,朝向:南北,采光好 5,可免营业费,!诚的服务,为您找到心仪的房产六大卖点不容你错过此套房
-
业主心态问经纪人
房东是本地人,很好说话的,为人亲和,他现在住徐汇,这边的房子没时间打理,也想着把房子早点卖出去的,房子只要看中了,价格还可以谈的,里面的家具家电都全送!
-
小区配套问经纪人
小区地理位置佳,绿化环境优越整洁,居民素质高,物业管理完善,适宜
-
服务介绍问经纪人
服务介绍 本人本网店只做信息正确即真实,照片真实,房源信息真实!欢迎监督。 目前网络广告很乱参差不齐,是网络报价的混乱!本人郑重宣告:所有报价均是业主亲自委托!所有报价均是真实报价,凡是低于
-
税费分析房贷计算
关于本房的税费信息情况,请电话联系我,我将详细的为您讲解!
周边配套
交通综合评分
查看全部超过上海45.7%的小区
-
地铁公交
10.0
-
驾车出行
6.0
本月均价 39152元/m²
环比上月 持平
同比去年 下跌 23.34%
猜你喜欢
同小区其它房源
户型齐全,主打户型方正,明厨,明卫,客厅朝南,全明格局,双卧朝南二居
彭浦新村户型主要有48平-62平的户型方正,明厨,明卫,客厅朝南,全明格局,双卧朝南的二居 、34平-42平的明厨,明卫的一居 。
*获取完整户型报告,同时会有免费语音讲解服务
买房加房产交流群,省钱不踩雷
3000+人正在热聊
- 免费咨询
- 专业服务
- 区域解读
- 户型分析


