高档纯独栋社区 户型大气 大花园600平 豪装全送 看房随时
-
1500万
总价
-
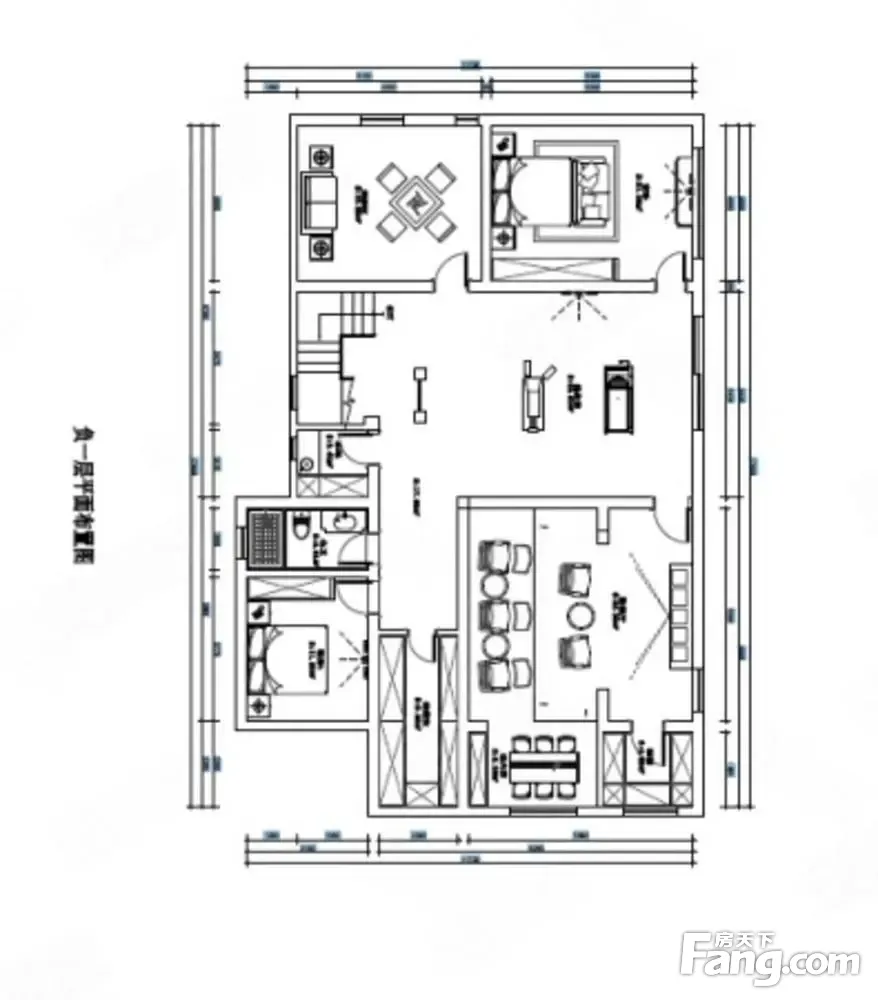
6室3厅6卫
户型
-
458㎡
建筑面积
买房加房产交流群,省钱不踩雷
3000+人正在热聊
加入群聊
-
单价
32751元/平米
- 挂牌价格解析
-
楼层
2层
- 咨询楼层
-
套内
暂无数据
- 咨询套内使用面积
-
楼型
独栋
-
朝向
南
-
装修
精装修
-
年代
2017
-
发布
2025-02-27
-
地铁
距9号线佘山站约1154米
-
咨询总首付
首付约449.2万
首付税费及佣金情况 -
深度测评
小区佘山东郡(松江-泗泾)
-
更多
楼户比、楼层高度、交易历史、抵押信息
-
核验码
202206116899
房源描述(1)
-
核心卖点问经纪人
1、房屋情况:豪装全送,保养很好,全方位采光,无遮挡。 2、小区情况:社区环境好,绿化。小区的容积率小,属于低密度社区,适宜,让您感受花园一样的家。 3、房价情况:低于市场价格急售;单价和总价都很低,并且这么好的户型,对于您将来的出售有益。 4、:配套成熟价格实惠未来规划好。
-
业主心态问经纪人
(1)诚意指数:业主要置换市区,离公司近点,所以诚意出售;(2)产权情况:产权人两个,无贷款,看中可谈! 如需了解,其他更多信息,请电话联系!
-
小区配套问经纪人
小区地理位置好,配套设施齐全,交通便利,居民素质高。
-
服务介绍问经纪人
本人从事房地产多年,公司有大量好房源,欢迎进入我的店铺查看,欢迎随时电话咨询,相信我的专业,为您置业安家保驾护航。
-
税费分析房贷计算
产权干净,税费清晰,欢迎来电咨询该房屋详情,静候您的来电!
周边配套
地址:古楼公路1269弄
交通综合评分
查看全部5.3
“一般”
超过上海35.6%的小区
-
地铁公交
8.0
-
驾车出行
7.0
猜你喜欢
同小区其它房源
户型齐全,主打多功能地下室,独立车库其他居
佘山东郡户型主要有324平-457平的多功能地下室,独立车库的其他居 、380平-420平的户型方正,明卫,客厅朝南的四居 、342平-342平的南北通透,户型方正的五居 。
*获取完整户型报告,同时会有免费语音讲解服务
-
36206元/㎡
本月挂牌均价
-
持平
环比上月
买房加房产交流群,省钱不踩雷
3000+人正在热聊
加入群聊
- 免费咨询
- 专业服务
- 区域解读
- 户型分析
免责声明:房源信息由网站用户提供,其真实性、合法性由信息提供者负责,最终以政府部门登记备案为准。本网站不声明或保证内容之正确性和可靠性,购买该房屋时,请谨慎核查。入学情况仅凭历史经验总结,在此不承诺升学事宜。请您在签订合同之前,切勿支付任何形式的费用,以免上当受骗。

