本人实地看过房子,对房源了解,实地拍摄视频和照片,拎包入住
-
1100万
总价
-
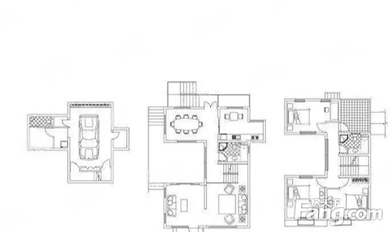
5室2厅4卫
户型
-
244.5㎡
建筑面积
买房加房产交流群,省钱不踩雷
3000+人正在热聊
-
单价
44990元/平米
- 挂牌价格解析
-
楼层
3层
- 咨询楼层
-
套内
220.05㎡
- 咨询套内使用面积
-
楼型
独栋
-
朝向
南
-
装修
简装修
-
年代
2010
-
发布
2024-11-05
-
地铁
暂无数据
-
咨询总首付
首付约329.4万
首付税费及佣金情况 -
深度测评
小区达安圣芭芭花园(松江-新桥)
-
更多
楼户比、楼层高度、交易历史、抵押信息
-
核验码
202000248057
房源描述(1)
-
核心卖点问经纪人
《达安圣芭芭》品质小区纯别墅西班牙风格,2010年竣工,次新别墅,带私人会所,小区有班车莘庄站,门口有双语和健身房,篮球场和网球场,品质高配套完善。 1.房型介绍:面积244.5平;一楼面宽7米的大厅,附带保姆房和车库;二楼:两房朝南,一房朝北,三楼,卧室面积28平米个阳台30平方。2、卖点:小区中心景观位置,前后无遮挡,靠公共绿地,花园300平。3、小区环境:小区环境优雅、舒适,绿化率,物业管理好,装修用了1年时间,花费300万,全屋三菱重工空调和地暖,新风系统,净水!4、观后感:本人实地看过房子,对房源了解,,实地拍摄视频和照片,拎包入住。
-
业主心态问经纪人
★《》:房东要置换市区的房子,所以要卖掉这套房子,诚意出售; ★《情况》:人在上海,方便签约,签约随时,无任何阻碍; ★《税费情况》:满五年 省两个点的个税;
-
小区配套问经纪人
小区的绿化很好,环境优美,安静舒适,居民素质高,物业管理完善。
-
服务介绍问经纪人
本人从事房地产多年,公司有大量好房源,欢迎进入我的店铺查看,欢迎随时电话咨询,相信我的专业,为您置业安家保驾护航。
-
税费分析房贷计算
新房:房税费首套房契税1至3个点。物业费2元到3元一平方。购买新房主要税费:契税:90平以内:1%;90-124平收1.5%;124平以上收2%(交房后地税收取)注:以上收费仅供参考
周边配套
交通综合评分
查看全部超过上海90.9%的小区
-
地铁公交
5.0
-
驾车出行
10.0
猜你喜欢
同小区其它房源
-
33537元/㎡
本月挂牌均价
-
持平
环比上月
买房加房产交流群,省钱不踩雷
3000+人正在热聊
- 免费咨询
- 专业服务
- 区域解读
- 户型分析

