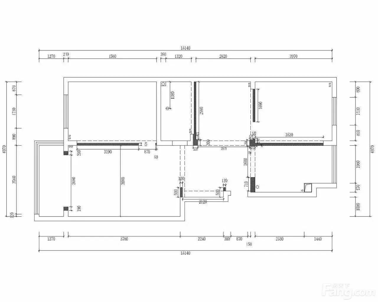
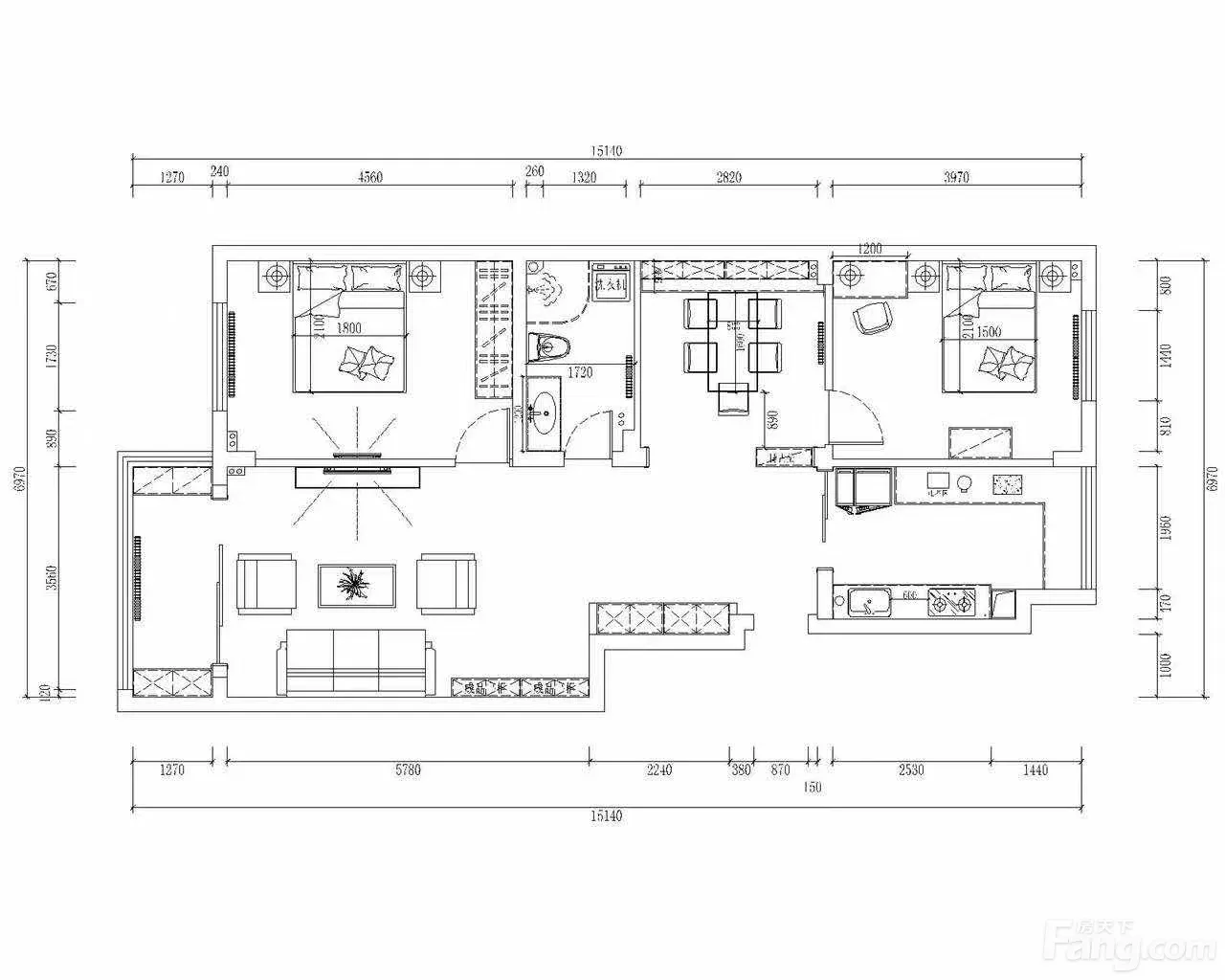
市南 华青花园 2室2厅 108.00㎡ 330万
-
270万元
总价
-
2室2厅1卫
户型
-
108㎡
建筑面积
买房加房产交流群,省钱不踩雷
3000+人正在热聊
加入群聊
-
单价
25000元/平米
- 挂牌价格解析
-
楼层
中层/11层
- 咨询楼层
-
套内
暂无数据
- 咨询套内使用面积
-
朝向
南北
-
年代
1999
-
发布
2025-10-30
-
地铁
距2号线燕儿岛路站约491米
-
咨询总首付
首付约117.6万
首付税费及佣金情况 -
深度测评
小区华青花园(市南-东海路)
-
更多
楼户比、楼层高度、交易历史、抵押信息
业主自评
-
江山如此多娇346
加入房天下275天
接电时间:09:00-22:00
周边配套
地址:东海西路51号、燕儿岛路6号
交通综合评分
查看全部4.0
“一般”
超过青岛71.0%的小区
-
地铁公交
10.0
本月均价 28442元/m²
环比上月 下跌 1.69%
同比去年 下跌 8.56%
猜你喜欢
同小区其它房源
户型齐全,主打户型方正,明厨,明卫,客厅朝南,双阳台,双卧朝南三居
华青花园户型主要有116平-268平的户型方正,明厨,明卫,客厅朝南,双阳台,双卧朝南的三居 、98平-127平的户型方正,明厨,主卧朝南的二居 、138平-178平的户型方正,明厨,独立衣帽间,双阳台,双卧朝南,主卧朝南的四居 。
*获取完整户型报告,同时会有免费语音讲解服务
-
31009元/㎡
本月挂牌均价
-
1.27%
环比上月
买房加房产交流群,省钱不踩雷
3000+人正在热聊
加入群聊
联系业主
免责声明:房源信息由网站用户提供,其真实性、合法性由信息提供者负责,最终以政府部门登记备案为准。本网站不声明或保证内容之正确性和可靠性,购买该房屋时,请谨慎核查。入学情况仅凭历史经验总结,在此不承诺升学事宜。请您在签订合同之前,切勿支付任何形式的费用,以免上当受骗。

