天立TT国际办公
-
136万
总价
-
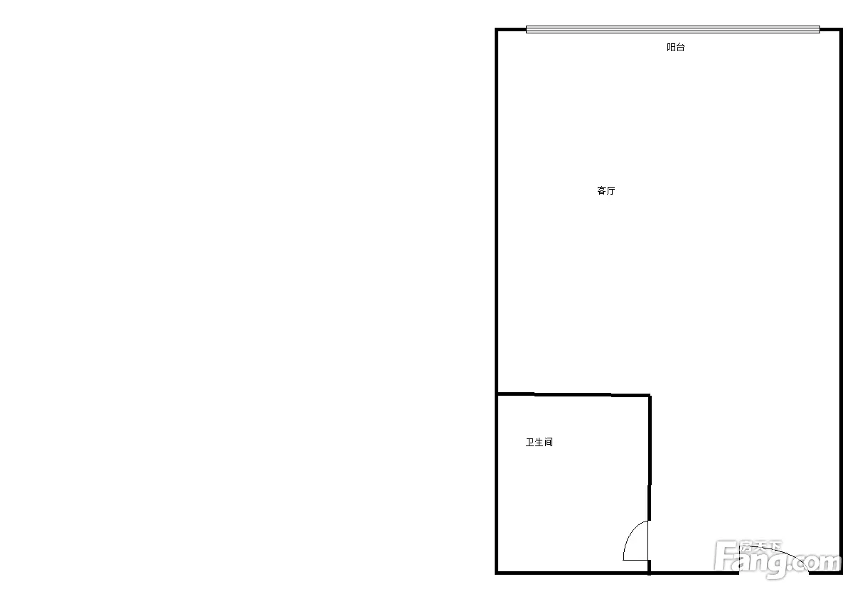
1室1厅1卫
户型
-
52.5㎡
建筑面积
买房加房产交流群,省钱不踩雷
3000+人正在热聊
加入群聊
-
单价
25905元/平米
- 挂牌价格解析
-
楼层
中楼层/28层
- 咨询楼层
-
套内
暂无数据
- 咨询套内使用面积
-
朝向
北
-
装修
中装修
-
年代
2010
-
发布
2026-02-03
-
地铁
距1号线会展中心站约779米
-
深度测评
小区天立TT国际(青秀-东盟商务区)
-
更多
楼户比、楼层高度、交易历史、抵押信息
周边配套
地址:南宁市厢竹大道7号立交桥旁
交通综合评分
查看全部6.7
“较好”
超过南宁26.1%的小区
-
地铁公交
10.0
-
驾车出行
9.0
本月均价 19470元/m²
环比上月 下跌 0.09%
同比去年 下跌 8.32%
猜你喜欢
同小区其它房源
-
16125元/㎡
本月挂牌均价
-
0.04%
环比上月
买房加房产交流群,省钱不踩雷
3000+人正在热聊
加入群聊
免责声明:房源信息由网站用户提供,其真实性、合法性由信息提供者负责,最终以政府部门登记备案为准。本网站不声明或保证内容之正确性和可靠性,购买该房屋时,请谨慎核查。入学情况仅凭历史经验总结,在此不承诺升学事宜。请您在签订合同之前,切勿支付任何形式的费用,以免上当受骗。



