华润万象华府 4室2厅 南
-
157万
总价
-
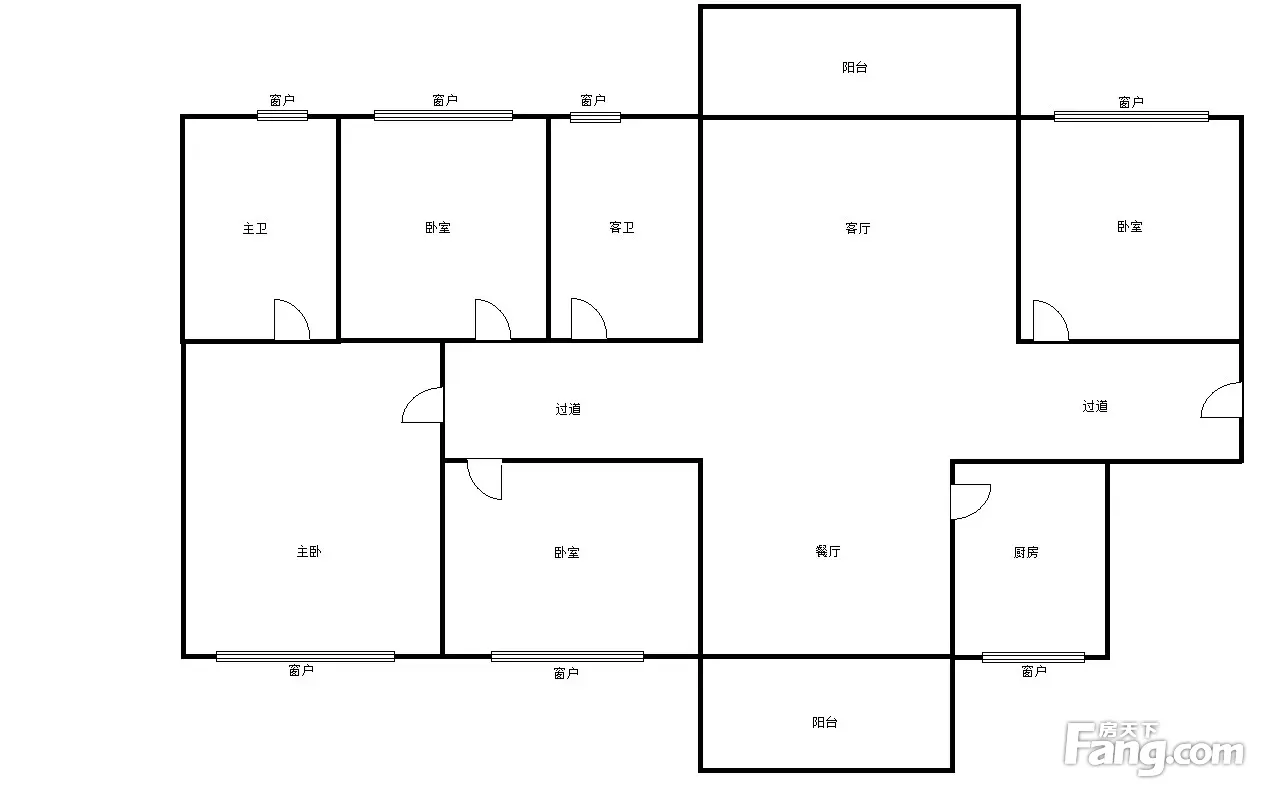
4室2厅
户型
-
126㎡
建筑面积
买房加房产交流群,省钱不踩雷
3000+人正在热聊
-
单价
12461元/平米
- 挂牌价格解析
-
楼层
中楼层/47层
- 咨询楼层
-
套内
暂无数据
- 咨询套内使用面积
-
楼型
塔楼
-
朝向
南
-
装修
毛坯
-
供暖
暂无数据
-
发布
2025-08-13
-
地铁
距5号线北湖南路约792米
-
深度测评
小区华润万象华府(西乡塘-友爱北湖片区)
-
更多
楼户比、楼层高度、交易历史、抵押信息
房源描述(3)
-
核心卖点问经纪人
华润万象华府,稀有南北双阳台大四房,急售可公积金 1、小区景观:此房位于小区中间位置,精装修。有钥匙! 2、户型:4房2卫,南北通透,卧室私密性好 3、特点:双阳台,2022年次新房! 4、产权:满二年,产权清晰,接受正常首付,能马上交易.
-
核心卖点问经纪人
华润万象华府,稀有南北双阳台大四房,急售可公积金 1、小区景观:此房位于小区中间位置,精装修。有钥匙! 2、户型:4房2卫,南北通透,卧室私密性好 3、特点:双阳台,2022年次新房! 4、产权:满二年,产权清晰,接受正常首付,能马上交易.
-
核心卖点问经纪人
华润万象华府,稀有南北双阳台大四房,急售可公积金 1、小区景观:此房位于小区中间位置,精装修。有钥匙! 2、户型:4房2卫,南北通透,卧室私密性好 3、特点:双阳台,2022年次新房! 4、产权:满二年,产权清晰,接受正常首付,能马上交易.
周边配套
交通综合评分
查看全部超过南宁68.4%的小区
-
地铁公交
10.0
-
城际交通
4.0
本月均价 12740元/m²
环比上月 下跌 0.24%
同比去年 下跌 4.01%
猜你喜欢
同小区其它房源
户型齐全,主打南北通透,双阳台四居
华润万象华府户型主要有124平-145平的南北通透,双阳台的四居 、89平-110平的户型方正,动静分离的三居 、142平-170平的户型方正,动静分离,U型厨房,双阳台的五居 。
*获取完整户型报告,同时会有免费语音讲解服务
-
7988元/㎡
本月挂牌均价
-
0.48%
环比上月
买房加房产交流群,省钱不踩雷
3000+人正在热聊
- 免费咨询
- 专业服务
- 区域解读
- 户型分析

