柳沙半岛一线江景楼中楼诚意出售
-
390万
总价
-
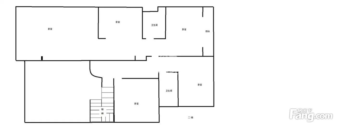
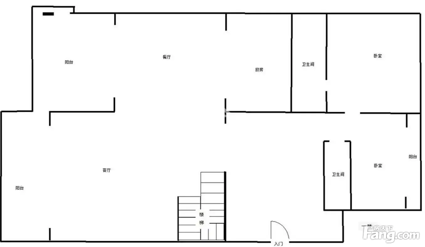
6室1厅3卫
户型
-
345㎡
建筑面积
买房加房产交流群,省钱不踩雷
3000+人正在热聊
加入群聊
-
单价
11305元/平米
- 挂牌价格解析
-
楼层
中楼层/18层
- 咨询楼层
-
套内
暂无数据
- 咨询套内使用面积
-
楼型
板塔结合
-
朝向
东南
-
装修
毛坯
-
供暖
暂无数据
-
发布
2023-02-20
-
地铁
暂无数据
-
深度测评
小区半岛半山(青秀-柳沙片区)
-
更多
楼户比、楼层高度、交易历史、抵押信息
周边配套
地址:柳沙半岛英华路68号
交通综合评分
查看全部3.2
“一般”
超过南宁97.7%的小区
-
地铁公交
8.0
本月均价 10105元/m²
环比上月 下跌 2.64%
同比去年 下跌 10.18%
猜你喜欢
同小区其它房源
户型齐全,主打户型方正,明厨,明卫三居
半岛半山户型主要有91平-165平的户型方正,明厨,明卫的三居 、121平-285平的户型方正,独立衣帽间,明卫,双卧朝南的四居 、80平-91平的户型方正,明厨,双阳台的二居 。
*获取完整户型报告,同时会有免费语音讲解服务
-
10261元/㎡
本月挂牌均价
-
0.81%
环比上月
买房加房产交流群,省钱不踩雷
3000+人正在热聊
加入群聊
免责声明:房源信息由网站用户提供,其真实性、合法性由信息提供者负责,最终以政府部门登记备案为准。本网站不声明或保证内容之正确性和可靠性,购买该房屋时,请谨慎核查。入学情况仅凭历史经验总结,在此不承诺升学事宜。请您在签订合同之前,切勿支付任何形式的费用,以免上当受骗。



