朝南户型主卧客厅朝南适合家庭居住,高楼层
-
185万
总价
-
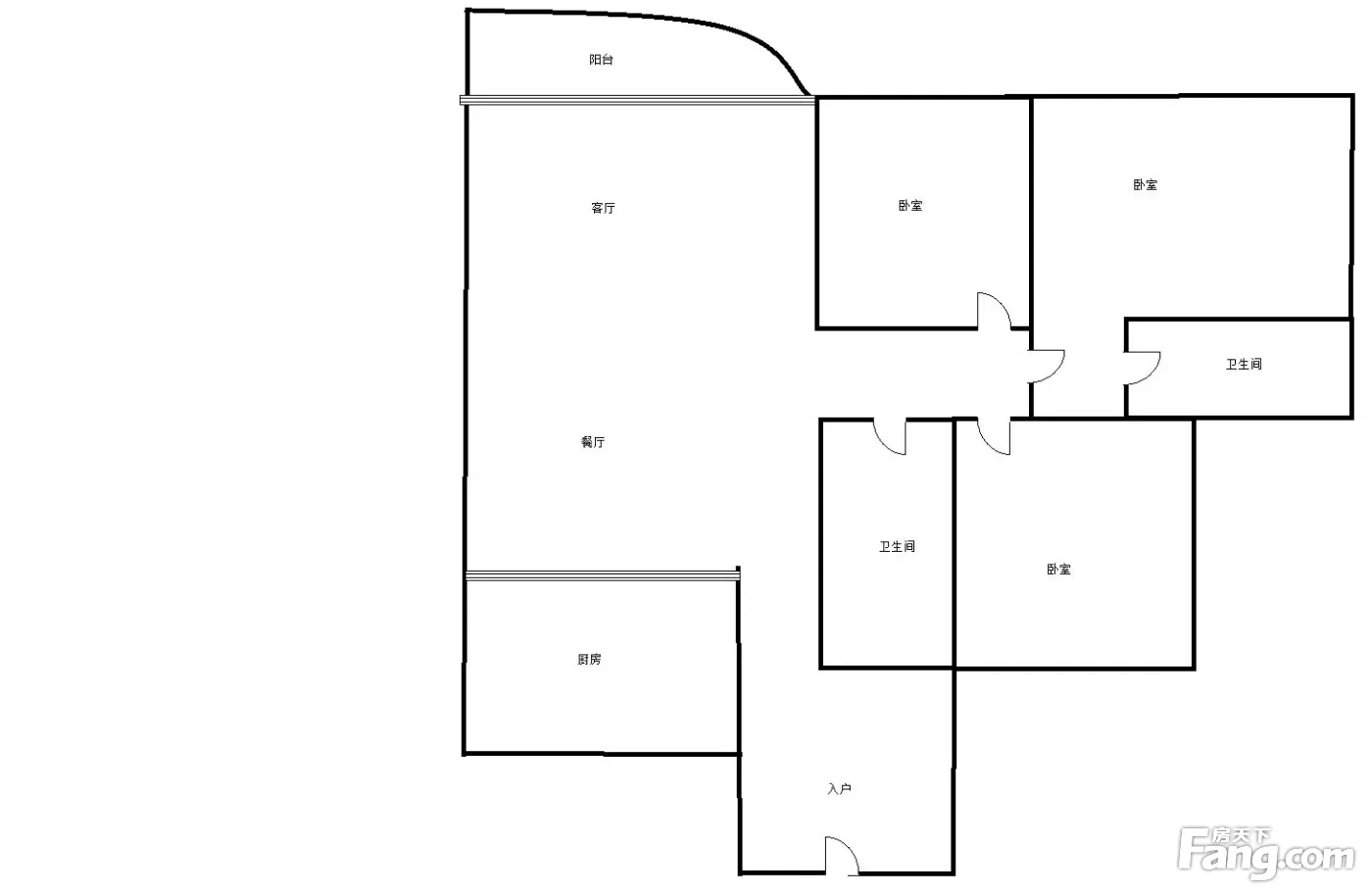
3室2厅2卫
户型
-
115.82㎡
建筑面积
买房加房产交流群,省钱不踩雷
3000+人正在热聊
-
单价
15974元/平米
- 挂牌价格解析
-
楼层
高楼层/24层
- 咨询楼层
-
套内
暂无数据
- 咨询套内使用面积
-
楼型
塔楼
-
朝向
南
-
装修
其他
-
供暖
暂无数据
-
年代
2009
-
发布
2023-11-22
-
地铁
距1号线万象城站约931米
-
深度测评
小区保利21世家(青秀-东盟商务区)
-
更多
楼户比、楼层高度、交易历史、抵押信息
房源描述(7)
-
核心卖点问经纪人
相信为您推荐的这套房子您一定会满意,赶快行动吧,先到先得! 房屋年代∶2009年,房屋面积∶116平方米,朝向∶正南 1. 小区配备良好物业管理,让你享受宾至如归的服务; 2. 小区人文素质高,是您的居家的品质选择; 3. 小区环境安静舒适,让您拥有高品质的生活环境; 4. 小区绿化高,绿树成荫鸟语花香让您随时呼吸到新鲜空气。
-
业主心态问经纪人
业主置换,诚心出售。 产权清晰,随时过户。 客户看上,价钱可谈。 随时看房,电话沟通。
-
小区配套问经纪人
周边公园:凤岭儿童公园、水世界、琅东公园、青秀山、石门森林公园。 周边大型商场:万象城、航洋城、沃尔玛、爱琴海广场、凤岭万达、山姆会员店、南城百货。 周边学校:桂雅路小学、翡翠园小学、国际三中、铜鼓岭路中小、天桃中小学、北大附属中小、翠竹实验学校、民主路小学、南宁二中、新民中学、凤岭北中学、百花岭路小学等
-
服务介绍问经纪人
在房地产这个行业持续稳定发展,是离不开您的支持,您买房始终会跟中介买房,收费都一样手续都一样办,您的事情就是我的事情,保证您在我这里买得放心,我会用心帮您找到满意合适的房子,用专业知识专程为您服务。
-
税费分析房贷计算
房子的税费是各付各税,也就是说业主卖房自己出自己的税,买家自己负责出自己的契税,契税是140平以下首套二套都是1%,140平以上首套1.5%和二套2%,三套及以上3%,详情请私信。
-
户型解读问经纪人
户型方正,南北对流。 楼间距宽,视野很好。 黄金楼层,视野好。 现场看房,价钱可谈。
-
核心卖点问经纪人
位于南宁青秀区东盟商务区核心地段,保利21世家这套115.82平米精装三房两卫户型,南北通透,采光充足。房源位于24层高层建筑中,南向朝向确保室内光线明亮,精装修状态可直接拎包入住。 该房源为满五住宅,总价180万,单价仅15541元/平,性价比突出。3室2厅2卫的格局设计合理,配备2个阳台,生活空间充裕。小区地处中柬路6号,周边商业配套成熟,生活便利,是改善型购房者的优质选择。
-
核心卖点问经纪人
本房源位于南宁青秀区东盟商务区核心地段保利21世家小区,2009年建成的高品质住宅。房屋为顶层32层,南向采光优越,116平米精装修三房两厅两卫一厨一阳台格局,空间布局合理,居住舒适度高。 小区地处东盟国际商务区中柬路6号,地理位置优越,周边配套成熟。房源满五年产权,总价200万,单价17241元/平,性价比突出。顶层设计保障私密性,精装交付可拎包入住,是改善型家庭的优质选择。
-
业主心态问经纪人
业主很信任我,我能了解业主卖房新的动态。目前市场交易量平稳,政策已经基本稳定,是市场触底入手的好时候。请不要错过性价比高的好房。
-
小区配套问经纪人
位置:小区地理位置佳,绿化率高,居民素质高配套:有健身器材,小型篮球场,可供小区居民使用车位:停车位充足,建有地上停车场和地下车库保安:小区内24保安巡逻
-
服务介绍问经纪人
本人从事房地产多年,公司有大量好房源,欢迎进入我的店铺查看,欢迎随时电话咨询,相信我的专业,为您置业安家保驾护航。
-
核心卖点问经纪人
本房源位于南宁青秀区东盟商务区核心地段保利21世家小区,2009年建成的高品质住宅。房屋为顶层32层,南向采光优越,116平米精装修三房两厅两卫一厨一阳台格局,空间布局合理,居住舒适度高。 小区地处东盟国际商务区中柬路6号,地理位置优越,周边配套成熟。房源满五年产权,总价200万,单价17241元/平,性价比突出。顶层设计保障私密性,精装交付可拎包入住,是改善型家庭的优质选择。
-
业主心态问经纪人
业主很信任我,我能了解业主卖房新的动态。目前市场交易量平稳,政策已经基本稳定,是市场触底入手的好时候。请不要错过性价比高的好房。
-
小区配套问经纪人
位置:小区地理位置佳,绿化率高,居民素质高配套:有健身器材,小型篮球场,可供小区居民使用车位:停车位充足,建有地上停车场和地下车库保安:小区内24保安巡逻
-
服务介绍问经纪人
本人从事房地产多年,公司有大量好房源,欢迎进入我的店铺查看,欢迎随时电话咨询,相信我的专业,为您置业安家保驾护航。
-
核心卖点问经纪人
本房源位于南宁青秀区东盟商务区核心地段保利21世家小区,2009年建成的高品质住宅。房屋为顶层32层,南向采光优越,116平米精装修三房两厅两卫一厨一阳台格局,空间布局合理,居住舒适度高。 小区地处东盟国际商务区中柬路6号,地理位置优越,周边配套成熟。房源满五年产权,总价200万,单价17241元/平,性价比突出。顶层设计保障私密性,精装交付可拎包入住,是改善型家庭的优质选择。
-
业主心态问经纪人
业主很信任我,我能了解业主卖房新的动态。目前市场交易量平稳,政策已经基本稳定,是市场触底入手的好时候。请不要错过性价比高的好房。
-
小区配套问经纪人
位置:小区地理位置佳,绿化率高,居民素质高 配套:有健身器材,小型篮球场,可供小区居民使用 车位:停车位充足,建有地上停车场和地下车库 保安:小区内24保安巡逻
-
服务介绍问经纪人
本人从事房地产多年,公司有大量好房源,欢迎进入我的店铺查看,欢迎随时电话咨询,相信我的专业,为您置业安家保驾护航。
-
核心卖点问经纪人
推荐理由1、 小区周边交通便利,生活配套设施齐全,生活十分便利2、公交地铁十分方便。出行方便,上下班方便3、购物方便节省您宝贵的时间4、小区绿化,环境优美,宁静和谐,好环境总会给人带来好心情5、房间干净整洁,温馨舒适,窗明几净,就等着您的拎包入住6、宽敞明亮,布局大方,采光好
-
业主心态问经纪人
业主很信任我,我能了解业主卖房新的动态。目前市场交易量平稳,政策已经基本稳定,是市场触底入手的好时候。请不要错过性价比高的好房。
-
小区配套问经纪人
。
-
服务介绍问经纪人
本人做房产多年,本着专业的房产知识,为您服务,我会在短的时间内帮您买好满意的房子,不让您错失任何好房子,更不让您每天为买房的事烦心,欢迎随时联系!
周边配套
交通综合评分
查看全部超过南宁97.2%的小区
-
地铁公交
10.0
-
驾车出行
10.0
本月均价 17538元/m²
环比上月 下跌 0.53%
同比去年 下跌 7.74%
猜你喜欢
同小区其它房源
户型齐全,主打户型方正,明卫,双阳台,双卧朝南,主卧朝南三居
保利21世家户型主要有115平-147平的户型方正,明卫,双阳台,双卧朝南,主卧朝南的三居 、124平-139平的户型方正,明卫,明厨,双阳台,双卧朝南,主卧朝南的四居 、65平-88平的户型方正,双卧朝南,主卧朝南的二居 。
*获取完整户型报告,同时会有免费语音讲解服务
-
16125元/㎡
本月挂牌均价
-
0.04%
环比上月
买房加房产交流群,省钱不踩雷
3000+人正在热聊
- 免费咨询
- 专业服务
- 区域解读
- 户型分析



