莱茵湖畔 129平 大三房带前后花园 售180万
-
155万
总价
-
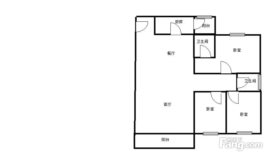
3室2厅
户型
-
129㎡
建筑面积
买房加房产交流群,省钱不踩雷
3000+人正在热聊
加入群聊
-
单价
12016元/平米
- 挂牌价格解析
-
楼层
低楼层/11层
- 咨询楼层
-
套内
暂无数据
- 咨询套内使用面积
-
楼型
塔楼
-
朝向
北
-
装修
其他
-
供暖
暂无数据
-
发布
2022-11-29
-
地铁
距1号线埌东客运站约526米
-
深度测评
小区莱茵湖畔(青秀-东盟商务区)
-
更多
楼户比、楼层高度、交易历史、抵押信息
周边配套
地址:民族大道170号(琅东客运站后)
交通综合评分
查看全部7.0
“较好”
超过南宁55.3%的小区
-
地铁公交
10.0
-
驾车出行
10.0
本月均价 10478元/m²
环比上月 上涨 0.44%
同比去年 下跌 4.26%
猜你喜欢
同小区其它房源
户型齐全,主打户型方正,明卫,明厨,主卧朝南二居
莱茵湖畔户型主要有71平-121平的户型方正,明卫,明厨,主卧朝南的二居 、83平-130平的明卫,客厅朝南,双阳台的三居 、110平-181平的户型方正,明卫,双阳台,双卧朝南的四居 。
*获取完整户型报告,同时会有免费语音讲解服务
-
16125元/㎡
本月挂牌均价
-
0.04%
环比上月
买房加房产交流群,省钱不踩雷
3000+人正在热聊
加入群聊
免责声明:房源信息由网站用户提供,其真实性、合法性由信息提供者负责,最终以政府部门登记备案为准。本网站不声明或保证内容之正确性和可靠性,购买该房屋时,请谨慎核查。入学情况仅凭历史经验总结,在此不承诺升学事宜。请您在签订合同之前,切勿支付任何形式的费用,以免上当受骗。



