毛坯出行方便配套齐全
-
400万
总价
-
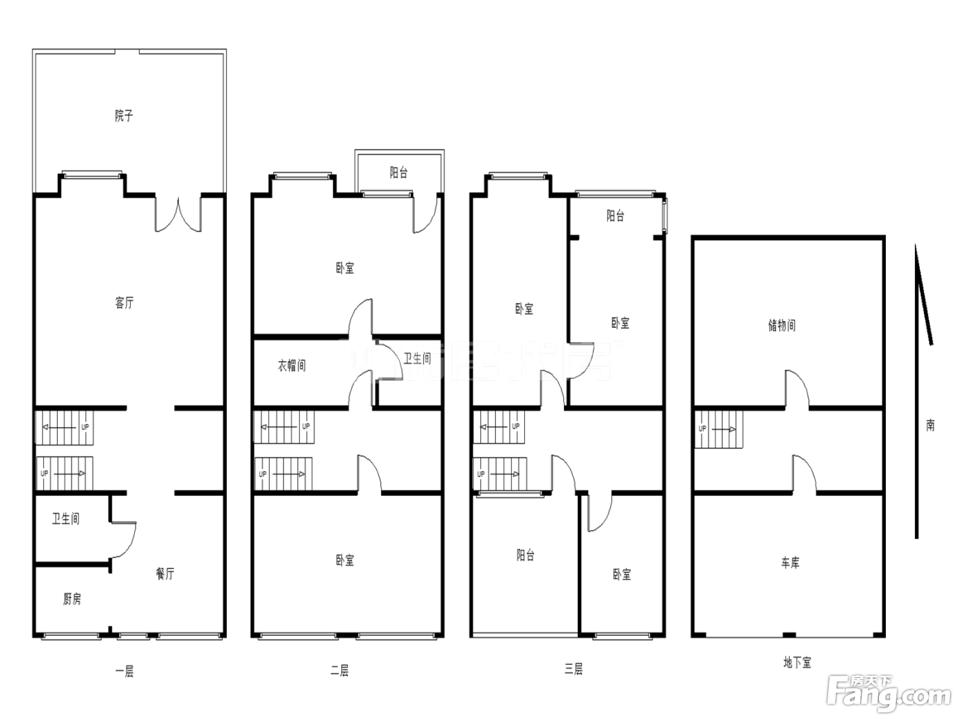
4室2厅4卫
户型
-
288㎡
建筑面积
-
单价
13889元/平米
- 挂牌价格解析
-
楼层
底层/1层
- 咨询楼层
-
套内
287㎡
- 咨询套内使用面积
-
楼型
板楼
-
朝向
南北
-
装修
毛坯
-
年代
2016
-
发布
2026-04-12
-
深度测评
小区名都枫景(新城-阿尔泰游乐园)
-
更多
楼户比、楼层高度、交易历史、抵押信息
房源描述(1)
周边配套
地址:海拉尔东路东北侧,展东路与爱民路交汇处西
交通综合评分
查看全部5.2
“一般”
超过呼和浩特50.3%的小区
-
地铁公交
10.0
-
城际交通
4.0
本月均价 7838元/m²
环比上月 下跌 0.39%
同比去年 下跌 5.26%
猜你喜欢
同小区其它房源
户型齐全,主打户型方正,明卫,客厅朝南,主卧朝南三居
名都枫景户型主要有95平-148平的户型方正,明卫,客厅朝南,主卧朝南的三居 、65平-116平的明厨,明卫,主卧朝南的二居 、89平-208平的明厨,明卫,客厅朝南,全明格局,主卧朝南的四居 。
*获取完整户型报告,同时会有免费语音讲解服务
-
8356元/㎡
本月挂牌均价
-
0.96%
环比上月
- 免费咨询
- 专业服务
- 区域解读
- 户型分析
免责声明:房源信息由网站用户提供,其真实性、合法性由信息提供者负责,最终以政府部门登记备案为准。本网站不声明或保证内容之正确性和可靠性,购买该房屋时,请谨慎核查。入学情况仅凭历史经验总结,在此不承诺升学事宜。请您在签订合同之前,切勿支付任何形式的费用,以免上当受骗。


