成 熟 社 区 生 活 氛 围 拉 满 教育气息满满
-
8万
总价
-
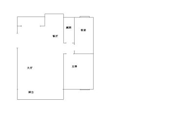
2室1厅
户型
-
46.63㎡
建筑面积
买房加房产交流群,省钱不踩雷
3000+人正在热聊
加入群聊
-
单价
1716元/平米
- 挂牌价格解析
-
楼层
低楼层/2层
- 咨询楼层
-
套内
46.63㎡
- 咨询套内使用面积
-
朝向
南
-
装修
简装
-
供暖
暂无数据
-
年代
1990
-
发布
2025-09-25
-
咨询总首付
首付约3.1万
首付税费及佣金情况 -
深度测评
小区齐洛瓦厂小区宿舍(昌北开发区-经开区)
-
更多
楼户比、楼层高度、交易历史、抵押信息
周边配套
地址:江西省南昌市昌北枫林大道与枫生高速交界处
交通综合评分
查看全部5.9
“一般”
超过南昌40.6%的小区
-
地铁公交
8.0
-
驾车出行
9.0
本月均价 7172元/m²
环比上月 上涨 0.89%
同比去年 下跌 1.97%
猜你喜欢
同小区其它房源
户型齐全,主打户型方正,明厨,客厅朝南二居
齐洛瓦厂小区宿舍户型主要有77平-120平的户型方正,明厨,客厅朝南的二居 、41平-41平的户型方正,明厨,明卫,客厅朝南的一居 、100平-100平的户型方正,明厨,明卫,客厅朝南,主卧朝南的三居 。
*获取完整户型报告,同时会有免费语音讲解服务
-
7897元/㎡
本月挂牌均价
-
0.07%
环比上月
买房加房产交流群,省钱不踩雷
3000+人正在热聊
加入群聊
免责声明:房源信息由网站用户提供,其真实性、合法性由信息提供者负责,最终以政府部门登记备案为准。本网站不声明或保证内容之正确性和可靠性,购买该房屋时,请谨慎核查。入学情况仅凭历史经验总结,在此不承诺升学事宜。请您在签订合同之前,切勿支付任何形式的费用,以免上当受骗。



