沙井路 楼层好 出行方便 满五 南北通透 临地铁
-
180万
总价
-
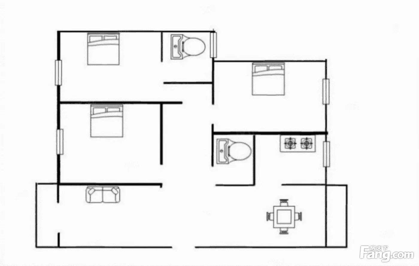
3室2厅2卫
户型
-
128.13㎡
建筑面积
买房加房产交流群,省钱不踩雷
3000+人正在热聊
-
单价
14048元/平米
- 挂牌价格解析
-
楼层
中层/7层
- 咨询楼层
-
套内
暂无数据
- 咨询套内使用面积
-
楼型
板楼
-
朝向
南北
-
装修
精装修
-
年代
2005
-
发布
2025-02-22
-
地铁
距1号线绿茵路站约258米
-
咨询总首付
首付约69.4万
首付税费及佣金情况 -
深度测评
小区红谷世纪花园(红谷滩-沙井)
-
更多
楼户比、楼层高度、交易历史、抵押信息
房源描述(1)
-
核心卖点问经纪人
1、交通很方便 2、朝向:南北 3、看房时间:24为您服务,期待您的提前联系 买房注意事项: 1、产权性质 2、所有权是否清晰 3、交易是否透明 4、资金一定要有保障 5、交易后的时间是否明确 6、 是否迁出 7、是否有租赁关系
-
业主心态问经纪人
业主诚心出售,欢迎看房,随时恭候您的到来。
-
小区配套问经纪人
位置:小区地理位置佳,绿化率高,居民素质高 配套:有健身器材,小型篮球场,可供小区居民使用 车位:停车位充足,建有地上停车场和地下车库 保安:小区内24保安巡逻
-
服务介绍问经纪人
本人从事房地产多年,公司有大量,欢迎进入我的店铺查看,欢迎随时电话咨询,相信我的专业,为您置业安家保驾护航。
周边配套
交通综合评分
查看全部超过南昌77.2%的小区
-
地铁公交
10.0
本月均价 16242元/m²
环比上月 下跌 1.32%
同比去年 下跌 15.52%
猜你喜欢
同小区其它房源
户型齐全,主打明卫,明厨,客厅朝南,全明格局三居
红谷世纪花园户型主要有93平-159平的明卫,明厨,客厅朝南,全明格局的三居 、57平-149平的户型方正,明厨,明卫,客厅朝南的二居 、163平-251平的明卫,明厨,客厅朝南,全明格局,主卧朝南的五居 。
*获取完整户型报告,同时会有免费语音讲解服务
-
13750元/㎡
本月挂牌均价
-
1.51%
环比上月
买房加房产交流群,省钱不踩雷
3000+人正在热聊
- 免费咨询
- 专业服务
- 区域解读
- 户型分析

