新区,市政府周边,20年新房别墅,,全新精装,送南北花园
-
695万
总价
-
6室5厅7卫
户型
-
397.31㎡
建筑面积
-
单价
17493元/平米
- 挂牌价格解析
-
楼层
3层
- 咨询楼层
-
套内
暂无数据
- 咨询套内使用面积
-
楼型
独栋
-
朝向
北
-
装修
豪华装修
-
年代
2020
-
发布
2025-11-30
-
深度测评
小区英和紫悦府别墅(洛龙-关林)
-
更多
楼户比、楼层高度、交易历史、抵押信息
房源描述(1)
-
核心卖点问经纪人
一、房源优势正规户型,日照充足,空气流畅 二、房屋介绍 格局合理,利用空间大,是 的好户型 三、社区配套 1、环境优雅,低密度社区 2、小区绿化高 四、周边配套 地理位置得天独厚,出行方便! 五、推荐理由 让您体验惬意的生活,充分享受生活的美!
-
业主心态问经纪人
业主很信任我,我能了解业主卖房新的动态。目前市场交易量平稳,政策已经基本稳定,是市场触底入手的好时候。请不要错过性价比高的好房。
-
小区配套问经纪人
小区周边游万达广场,隋唐植物园,大张盛德美购物广场,枫叶国际学校,第五人民医院等,生活配套齐全
-
服务介绍问经纪人
本人从事房地产多年,公司有大量好房源,欢迎进入我的店铺查看,欢迎随时电话咨询,相信我的专业,为您置业安家保驾护航。
-
税费分析房贷计算
新房0手续费 首套房 90平以,契税下1%,90平以上1.5% 二套房 契税2% 三套以上 统一3%
-
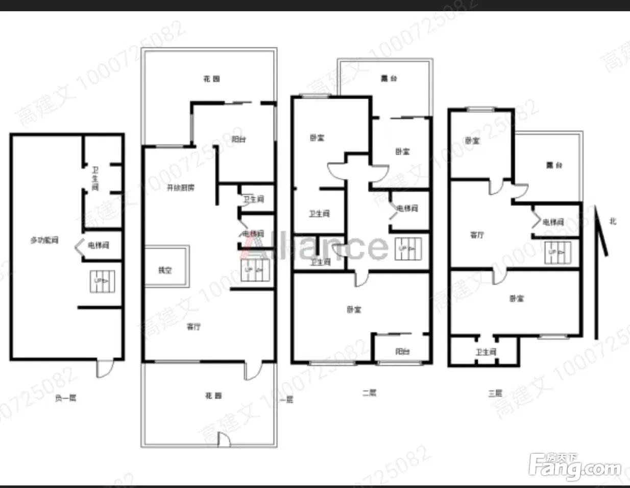
户型解读问经纪人
别墅地下一层,地上3层, 负一层200平方客厅,1个卫生间,2个车位 1楼南北花园,厨房餐厅客厅南北通透,1个洗衣房朝北 2楼,1个卧室潮安,2个卧室朝北 3楼40平方客厅带采光天窗,主卧朝南,次卧朝北,露台朝被
周边配套
地址:龙门大道与古城路交汇处东800米
-
6961元/㎡
本月挂牌均价
-
1.65%
环比上月
- 免费咨询
- 专业服务
- 区域解读
- 户型分析
免责声明:房源信息由网站用户提供,其真实性、合法性由信息提供者负责,最终以政府部门登记备案为准。本网站不声明或保证内容之正确性和可靠性,购买该房屋时,请谨慎核查。入学情况仅凭历史经验总结,在此不承诺升学事宜。请您在签订合同之前,切勿支付任何形式的费用,以免上当受骗。


