洛龙核心丨国宝大别墅丨边户大花园丨业主急售丨随时看房
-
930万
总价
-
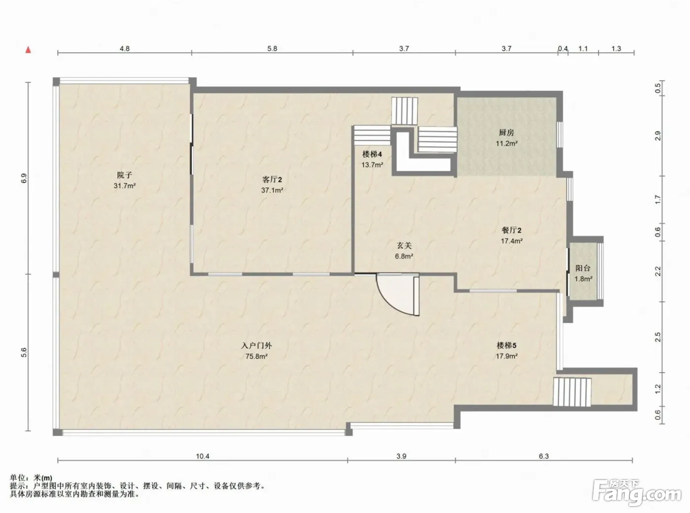
6室3厅4卫
户型
-
550㎡
建筑面积
-
单价
16909元/平米
- 挂牌价格解析
-
楼层
3层
- 咨询楼层
-
套内
暂无数据
- 咨询套内使用面积
-
楼型
独栋
-
朝向
东
-
装修
毛坯
-
年代
2017
-
发布
2025-04-02
-
深度测评
小区凯瑞国宝花园别墅(洛龙-大学城)
-
更多
楼户比、楼层高度、交易历史、抵押信息
房源描述(1)
-
核心卖点问经纪人
【房屋简介】2017年建成的大平层,6室3厅4卫,空间利用率高,餐厅客厅可分离,南北通透,空气流通,朝向良好。带电梯,方便快捷。清水房,直接装修,节省费用。物业完善,24保安值班,周边配套齐全,设施完备。适合追求品质生活的您!
-
业主心态问经纪人
【业主心态】业主因资金周转需求,诚意出售此房。手续完备,随时可配合看房。房主开放议价空间,积极配合过户,确保交易顺利进行。诚意满满,期待有缘人。
-
小区配套问经纪人
位置:小区地理位置佳,绿化率高,居民素质高 配套:有健身器材,小型篮球场,可供小区居民使用 车位:停车位充足,建有地上停车场和地下车库 保安:小区内24保安巡逻
-
服务介绍问经纪人
本人从事房地产多年,公司有大量好房源,欢迎进入我的店铺查看,欢迎随时电话咨询,相信我的专业,为您置业安家保驾护航。
周边配套
-
10214元/㎡
本月挂牌均价
-
1.14%
环比上月
- 免费咨询
- 专业服务
- 区域解读
- 户型分析
免责声明:房源信息由网站用户提供,其真实性、合法性由信息提供者负责,最终以政府部门登记备案为准。本网站不声明或保证内容之正确性和可靠性,购买该房屋时,请谨慎核查。入学情况仅凭历史经验总结,在此不承诺升学事宜。请您在签订合同之前,切勿支付任何形式的费用,以免上当受骗。


