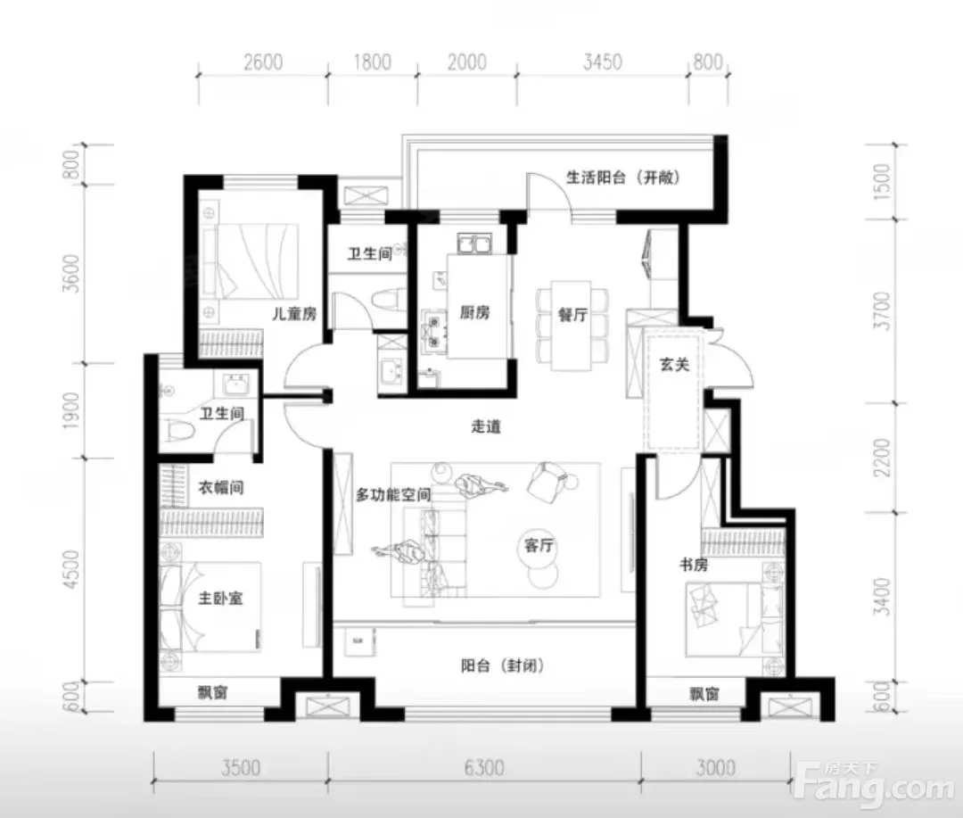
东昌府 观棠阅境 3室2厅 临近新一中采光好
-
124万元
总价
-
3室2厅2卫
户型
-
139㎡
建筑面积
-
单价
8921元/平米
- 挂牌价格解析
-
楼层
低层/10层
- 咨询楼层
-
套内
暂无数据
- 咨询套内使用面积
-
朝向
南北
-
年代
2025
-
发布
2026-02-06
-
地铁
暂无数据
-
深度测评
小区观棠阅境(东昌府-东昌湖周边)
-
更多
楼户比、楼层高度、交易历史、抵押信息
业主自评
-
平湖烟雨暮色凉647
加入房天下802天
接电时间:09:00-22:00
临近新一中。南北通透 采光好 新房。送储藏室。小区总楼层低。环境宜人。
临近新一中。南北通透 采光好 新房。送储藏室。小区总楼层低。环境宜人。
联系业主
免责声明:房源信息由网站用户提供,其真实性、合法性由信息提供者负责,最终以政府部门登记备案为准。本网站不声明或保证内容之正确性和可靠性,购买该房屋时,请谨慎核查。入学情况仅凭历史经验总结,在此不承诺升学事宜。请您在签订合同之前,切勿支付任何形式的费用,以免上当受骗。

