房子户型端开发商标准的精装交付小区环境好
-
51万
总价
-
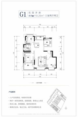
3室2厅
户型
-
107.35㎡
建筑面积
买房加房产交流群,省钱不踩雷
3000+人正在热聊
加入群聊
-
单价
4751元/平米
- 挂牌价格解析
-
楼层
低楼层/18层
- 咨询楼层
-
套内
暂无数据
- 咨询套内使用面积
-
楼型
塔楼
-
朝向
东南
-
装修
精装
-
供暖
暂无数据
-
发布
2025-12-25
-
深度测评
小区昆明恒大国际健康城(嵩明-嵩明)
-
更多
楼户比、楼层高度、交易历史、抵押信息
周边配套
地址:新空港经济区 中国·昆明·嘉丽泽湿地
交通综合评分
查看全部3.0
“一般”
超过昆明56.0%的小区
-
驾车出行
10.0
本月均价 6725元/m²
环比上月 下跌 2.82%
同比去年 上涨 41.6%
猜你喜欢
同小区其它房源
户型齐全,主打户型方正,动静分离三居
昆明恒大国际健康城户型主要有92平-212平的户型方正,动静分离的三居 、145平-183平的户型方正,动静分离的四居 、38平-50平的户型方正,主卧朝南的一居 。
*获取完整户型报告,同时会有免费语音讲解服务
买房加房产交流群,省钱不踩雷
3000+人正在热聊
加入群聊
免责声明:房源信息由网站用户提供,其真实性、合法性由信息提供者负责,最终以政府部门登记备案为准。本网站不声明或保证内容之正确性和可靠性,购买该房屋时,请谨慎核查。入学情况仅凭历史经验总结,在此不承诺升学事宜。请您在签订合同之前,切勿支付任何形式的费用,以免上当受骗。



