跃层大房子毛坯,小区环境好,随时看房
-
167万
总价
-
4室2厅
户型
-
180㎡
建筑面积
买房加房产交流群,省钱不踩雷
3000+人正在热聊
加入群聊
-
单价
9278元/平米
- 挂牌价格解析
-
楼层
高楼层/6层
- 咨询楼层
-
套内
暂无数据
- 咨询套内使用面积
-
朝向
南
-
装修
毛坯
-
供暖
暂无数据
-
发布
2024-05-20
-
深度测评
小区紫骏苑(盘龙-昙华寺片区)
-
更多
楼户比、楼层高度、交易历史、抵押信息
周边配套
地址:人民东路昙华寺公园后面
交通综合评分
查看全部7.0
“较好”
超过昆明0.2%的小区
-
地铁公交
10.0
-
驾车出行
10.0
本月均价 9416元/m²
环比上月 上涨 0.77%
同比去年 上涨 5.49%
猜你喜欢
同小区其它房源
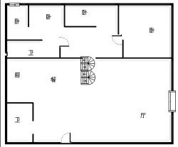
户型齐全,主打户型方正,明卫,客厅朝南,双阳台,双卧朝南四居
紫骏苑户型主要有150平-150平的户型方正,明卫,客厅朝南,双阳台,双卧朝南的四居 。
*获取完整户型报告,同时会有免费语音讲解服务
-
8585元/㎡
本月挂牌均价
-
0.05%
环比上月
买房加房产交流群,省钱不踩雷
3000+人正在热聊
加入群聊
免责声明:房源信息由网站用户提供,其真实性、合法性由信息提供者负责,最终以政府部门登记备案为准。本网站不声明或保证内容之正确性和可靠性,购买该房屋时,请谨慎核查。入学情况仅凭历史经验总结,在此不承诺升学事宜。请您在签订合同之前,切勿支付任何形式的费用,以免上当受骗。



