诚心急售火车北站旁近穿金路地铁口 成熟小区生活便捷
-
18.6万
总价
-
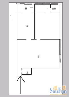
1室1厅1卫
户型
-
29.7㎡
建筑面积
买房加房产交流群,省钱不踩雷
3000+人正在热聊
加入群聊
-
单价
6263元/平米
- 挂牌价格解析
-
楼层
中楼层/7层
- 咨询楼层
-
套内
暂无数据
- 咨询套内使用面积
-
楼型
板楼
-
朝向
南北
-
装修
精装
-
供暖
暂无数据
-
发布
2024-12-03
-
地铁
距5号线穿金路站约358米
-
深度测评
小区席子营小区(盘龙-新迎片区)
-
更多
楼户比、楼层高度、交易历史、抵押信息
周边配套
地址:环城北路16号
交通综合评分
查看全部7.9
“较好”
超过昆明21.9%的小区
-
地铁公交
10.0
-
驾车出行
9.0
-
城际交通
4.0
本月均价 8263元/m²
环比上月 下跌 0.24%
同比去年 下跌 6.62%
猜你喜欢
同小区其它房源
户型齐全,主打明卫,明厨,客厅朝南二居
席子营小区户型主要有37平-60平的明卫,明厨,客厅朝南的二居 、37平-74平的明厨,明卫的三居 、37平-46平的明厨的一居 。
*获取完整户型报告,同时会有免费语音讲解服务
-
9461元/㎡
本月挂牌均价
-
1.56%
环比上月
买房加房产交流群,省钱不踩雷
3000+人正在热聊
加入群聊
免责声明:房源信息由网站用户提供,其真实性、合法性由信息提供者负责,最终以政府部门登记备案为准。本网站不声明或保证内容之正确性和可靠性,购买该房屋时,请谨慎核查。入学情况仅凭历史经验总结,在此不承诺升学事宜。请您在签订合同之前,切勿支付任何形式的费用,以免上当受骗。



