满五唯一住房 4室2厅 电梯房 108平 诚心出售 价格可议
-
103万
总价
-
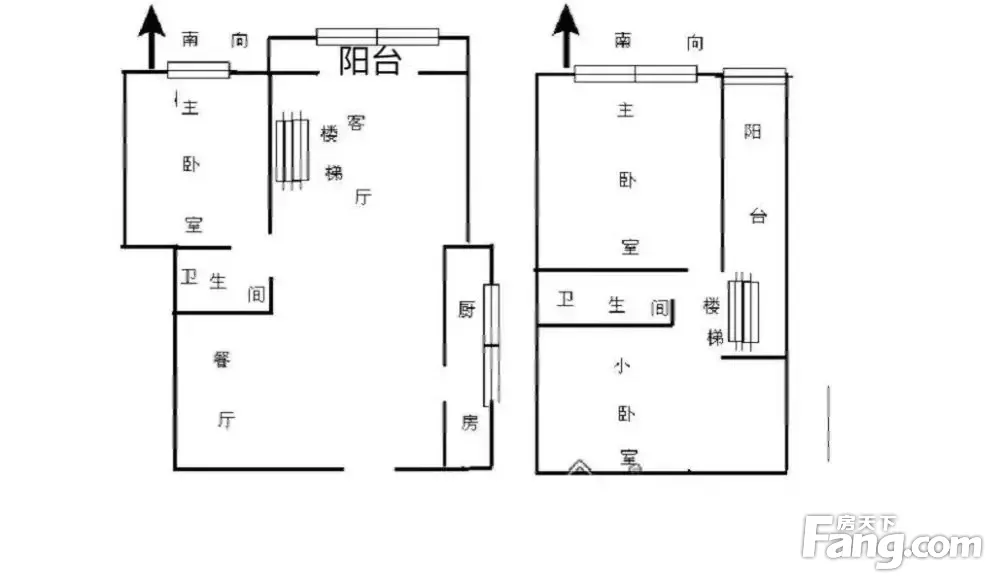
4室2厅2卫
户型
-
108.97㎡
建筑面积
买房加房产交流群,省钱不踩雷
3000+人正在热聊
-
单价
9452元/平米
- 挂牌价格解析
-
楼层
低层/9层
- 咨询楼层
-
套内
107.97㎡
- 咨询套内使用面积
-
朝向
东南
-
装修
简装修
-
年代
2003
-
发布
2026-03-31
-
地铁
距2号线白云路站约648米
-
深度测评
小区金洲湾(盘龙-火车北站)
-
更多
楼户比、楼层高度、交易历史、抵押信息
房源描述(1)
-
核心卖点问经纪人
核心 1.成熟社区:周边配套齐全,出行购物方便。 2.得房率高,精装修、布局合理、无浪费面积。 3.停车位:本小区停车方便 4.绿化率:绿化率高达45左右,高绿化社区。 5.小区介绍:环境优雅,周边生活配套设施齐全,医院、 、邮局、银行。超市都近在咫尺,生活便利,室内阳光充足,干净舒适,格局无浪费,交通便利,适于居住。
-
业主心态问经纪人
房主因置换和资金周转需求,诚意出售此房。我与房主关系密切,对其充分了解,房主对我充满信任。房主积极配合,随时可看房,手续完备,且有议价空间。急售心态,期待找到理想的买家。
-
小区配套问经纪人
小区地理位置佳,绿化环境优越整洁,居民素质高,物业管理完善,适宜居住
-
服务介绍问经纪人
我是您专属的房产,拥有2年以上的丰富从业经验,熟悉各类房屋买卖流程,包括商业贷款、公积金和转按揭。我的专业服务涵盖了带看包接送、协助办理手续、装修咨询及买卖建议,确保您的购房过程无忧。凭借良好的控房能
-
税费分析房贷计算
关于本房的税费信息情况,请电话联系我,我将详细的为您讲解!
-
户型解读问经纪人
房屋拥有相对宽松的尺寸,布局通透,动静分离,设计豪华
周边配套
交通综合评分
查看全部超过昆明60.9%的小区
-
地铁公交
10.0
-
驾车出行
7.0
本月均价 9732元/m²
环比上月 下跌 1.35%
同比去年 下跌 15.63%
猜你喜欢
同小区其它房源
户型齐全,主打户型方正,明卫,明厨,客厅朝南,全明格局二居
金洲湾户型主要有44平-85平的户型方正,明卫,明厨,客厅朝南,全明格局的二居 、66平-122平的户型方正,明厨,客厅朝南的三居 、107平-153平的户型方正,明卫,明厨,主卧朝南的四居 。
*获取完整户型报告,同时会有免费语音讲解服务
-
9043元/㎡
本月挂牌均价
-
0.11%
环比上月
买房加房产交流群,省钱不踩雷
3000+人正在热聊
- 免费咨询
- 专业服务
- 区域解读
- 户型分析

