金水湾 5室2厅 198.58平
-
216万
总价
-
5室2厅2卫
户型
-
198.58㎡
建筑面积
买房加房产交流群,省钱不踩雷
3000+人正在热聊
-
单价
10877元/平米
- 挂牌价格解析
-
楼层
中层/11层
- 咨询楼层
-
套内
197.58㎡
- 咨询套内使用面积
-
朝向
南
-
装修
精装修
-
年代
2006
-
发布
2026-01-18
-
地铁
距2号线司家营站约812米
-
深度测评
小区金水湾(五华-北市区公交车场)
-
更多
楼户比、楼层高度、交易历史、抵押信息
房源描述(1)
-
核心卖点问经纪人
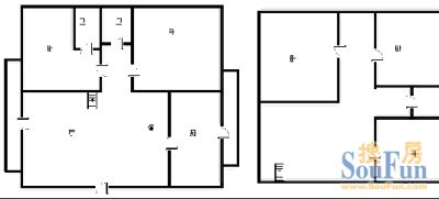
核心 房子在盘龙江边,小区环境优雅, 2.一梯两户板式房, 小区介绍 房子是冶金系统的职工房,房子户型方正,公摊小,小区环境优雅,绿化比较高,居住养老必选 户型介绍 1.房子是一梯两户,南北朝向,房子方正,2.4房子是四室两厅两卫的房子,明厨明卫的房子 交通出行 房子出了小区就是盘龙江边,过了盘龙江200米就是地铁二号,小区在小康大道上,出门有多路公交车。96.128.150.126.136.191.多路公家车经过
-
业主心态问经纪人
房东置换,诚心出售,可以再谈,欢迎看房,随时恭候。
-
小区配套问经纪人
小区地理位置佳,绿化环境优越整洁,居民素质高,物业管理完善,适宜居住
-
服务介绍问经纪人
本人做房产多年,一直本着专业的房产知识,为您服务,我会在短的时间内帮您买好满意的房子,不让您错失任何好房子,更不让您每天为买房的事烦心,欢迎随时拨打我电话。
-
税费分析房贷计算
关于本房的税费信息情况,请电话联系我,我将详细的为您讲解!
-
户型解读问经纪人
房屋拥有相对宽松的尺寸,布局通透,动静分离,设计豪华
周边配套
交通综合评分
查看全部超过昆明61.8%的小区
-
地铁公交
10.0
-
驾车出行
10.0
本月均价 11939元/m²
环比上月 下跌 4.12%
同比去年 下跌 5.28%
猜你喜欢
同小区其它房源
户型齐全,主打户型方正,明厨,明卫,双卧朝南,主卧朝南,独立衣帽间五居
金水湾户型主要有195平-277平的户型方正,明厨,明卫,双卧朝南,主卧朝南,独立衣帽间的五居 、159平-160平的明卫,双阳台,双卧朝南的四居 、116平-126平的户型方正,明卫,明厨,客厅朝南,全明格局,双卧朝南的三居 。
*获取完整户型报告,同时会有免费语音讲解服务
-
10159元/㎡
本月挂牌均价
-
0.97%
环比上月
买房加房产交流群,省钱不踩雷
3000+人正在热聊
- 免费咨询
- 专业服务
- 区域解读
- 户型分析


